logo mondocasa

Negozio

€ 275.000

  • in Vendita
  • Mq.: 190

Descrizione

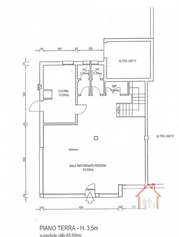
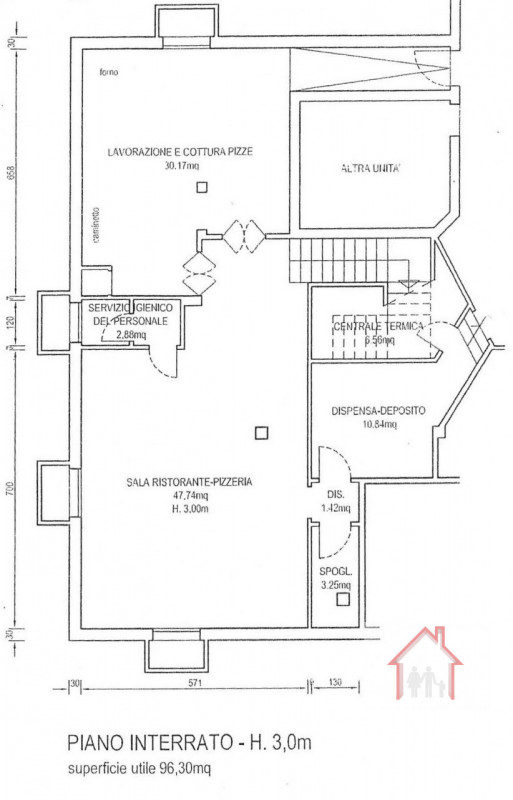
Rif: DN102 X Info - Denis: 3402540785 Spresiano (TV) Proponiamo in vendita un immobile commerciale adibito ad attività di bar pizzeria situato nel centro di Spresiano. La proprietà si estende su una superficie di 190 mq, ed è distribuita su piano terra e interrato con comoda rampa per carico e scarico.

Il piano terra ospita la zona bar con posti a sedere, bagno, cucina e spogliatoio, mentre l'interrato presenta un forno per pizza, laboratorio, ulteriore sala con posti a sedere, magazzino, cella frigo e centrale termica. Questo immobile rappresenta un ottimo investimento grazie alla sua posizione strategica nel cuore del paese. Per maggiori informazioni contattare Bizzotto Denis presso l'Agenzia Immobiliare Luxor al numero 3402540785. L’ Agenzia immobiliare Luxor, da più di 20 anni, offre a tutti i clienti che vogliono vendere o acquistare casa un servizio completo e personalizzato alle specifiche esigenze di ognuno. Per informazioni contattateci: Tel: 3402540785 uff. 0422.1522739 Mail: info@immobiliareluxor.it Sede uffici: Viale L.G. Manin n. 12 Volpago del Montello (TV) Sito: www.immobiliareluxor.it GESTIONE IMMOBILI: Tutti gli immobili, da noi gestiti, ci sono stati affidati dai proprietari attraverso un mandato di vendita e vengono proposti dopo una nostra valutazione ed analisi di mercato. VISITE SULL’IMMOBILE: Le visite sono organizzate previo appuntamento conoscitivo ed informativo, senza alcun impegno, presso il nostro ufficio. CONSULENZA MUTUO: Offriamo la possibilità di effettuare una consulenza con un nostro mediatore creditizio per accedere al mutuo su misura in base alle specifiche esigenze di finanziamento personali. RICORDIAMO infine che, in caso di acquisto, al prezzo del bene immobile dovranno essere aggiunti i seguenti costi: IVA o imposta di Registro, provvigione dovuta all’Agenzia Immobiliare, spese notarili, spese relative all’erogazione del mutuo, se richiesto. --- annuncio pubblicato con GESTIONALEIMMOBILIARE.it.

Dettagli

  • ID Annuncio: 49186000
  • Prezzo: € 275.000
  • Superficie: 190 m²
  • Pubblicazione: 22/09/2025
  • Tipologia:
  • Contratto:

Informazioni addizionali

  • Arredamento: Arredato
  • Riscaldamento: Climatizzato
  • Cucina: Non Specificata
  • Condizioni: Buono Stato

Efficienza Energetica

  • Classe Energetica:
  • I.P.E.: 476.50 kWh/m3anno

Indirizzo Caricamento...