logo mondocasa
Emilia Romagna - Provincia di Parma - Traversetolo

Villa

€ 480.000

  • in Vendita
  • Locali: 7
  • Bagni: 2
  • Mq.: 176

Descrizione

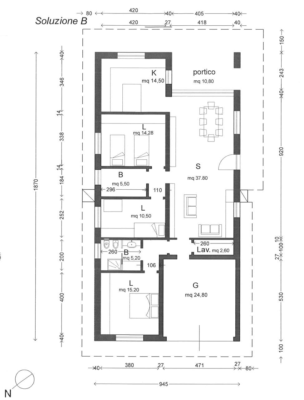
Traversetolo, proponiamo in vendita una splendida villa monofamiliare disposta su un unico livello di prossima realizzazione. Scopri un'esperienza abitativa unica in questa villa di nuova costruzione, situata in una zona tranquilla e panoramica. Questa proprietà è il perfetto equilibrio tra design moderno e comfort.

La villa è composta da un ampio e luminoso soggiorno di 43 mq con una ampia porta scorrevole che porta direttamente al portico e al giardino, una cucina abitabile dalla quale si puó accedere direttamente al portico, la zona notte che è composta da due spaziose camere matrimoniali, una camera singola, disimpegno e due bagni. Completa la proprietà un comodo garage con accesso diretto all'abitazione. Ottime finiture. Nella realizzazione dell'unità immobiliare saranno utilizzati materiali di alta qualità e di nuova concezione con attenzione ai dettagli e al soddisfacimento dei requisiti per risparmio energetico. Gli spazi abitativi sono ampi e luminosi creando un'atmosfera accogliente e rilassante. Il lotto su cui verrà costruita la villetta è di 750 mq. Una casa ecosostenibile viene realizzata favorendo l'efficienza energetica, attraverso la riduzione dei consumi grazie ad un buon isolamento termico. Per quanto riguarda l'efficienza energetica la costruzione sarà qualificata in classe A, per un ridotto impatto ambientale e risparmi sui costi di gestione. La villetta sarà rifinita con pavimenti in gres porcellanato, riscaldamento a pavimento, infissi in alluminio con taglio termico, tetto in legno lamellare a vista sbiancato, impianto fotovoltaico da 6 KW . Questa villa rappresenta la scelta ideale per chi cerca un'abitazione di nuova costruzione in zona verde e tranquilla , ma comoda a tutti i servizi. Non perdere l'opportunità di vivere in un ambiente esclusivo. CLASSE ENERGETICA: A.

Dettagli

  • ID Annuncio: 49187023
  • Prezzo: € 480.000
  • Superficie: 176 m²
  • Pubblicazione: 12/09/2025
  • Tipologia:
  • Locali: 7
  • Bagni: 2
  • Contratto:

Informazioni addizionali

  • Arredamento: Vuoto
  • Riscaldamento: Autonomo
  • Cucina: Cucina abitabile
  • Condizioni: In Costruzione

Efficienza Energetica

  • Classe Energetica:
  • I.P.E.: Non Specificato

Indirizzo Caricamento...