logo mondocasa
Emilia Romagna - Provincia di Forli Cesena - Cesena

Attico

€ 1.059.000

  • in Vendita
  • Bagni: 3
  • Mq.: 330

Descrizione

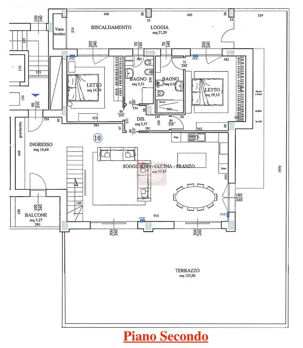
S. MANURO IN VALLE (ATC63b): in contesto di dieci unità di prossima realizzazione proponiamo splendido ATTICO disposto su due livelli e servito da ascensore. Al piano nobile troviamo un ampio ingresso/guardaroba con la luminosa zona giorno con cucina a vista per un totale di ben 68 mq , 2 camere da letto matrimoniali con 2 bagni e un ampio terrazzo su tre lati di c.

a. 150 mq, ideale per pranzi e cene all'aperto e un ulteriore balcone dove affaccia l'ingresso/guardaroba. Al piano superiore (sottotetto alto) altri tre vani da sfruttare come camere e studio e un vano per il bagno. Completa il tutto un garage di 34 mq. L'immobile verrà realizzato con FINITURE DI PREGIO e CARATTERISTICHE DI ALTO RISPARMIO ENERGETICO, ovvero: cappotto termico, riscaldamento autonomo a pavimento con pompa di calore, impianto fotovoltaico da 4 kw, infissi in pvc con anta-ribalta, zanzariere e avvolgibili in alluminio coibentato e motorizzati, tetto in legno ventilato, gronde e pluviali in acciaio inox, bagni con sanitari sospesi e box doccia in alluminio e cristallo, cassetta di sicurezza, luce di emergenza. Saranno inoltre forniti COMPLETI DI MACCHINARI e quindi già funzionanti i seguenti impianti: climatizzazione, allarme, aspirazione centralizzata, VMC (ventilazione meccanica controllata). N.B. Le presenti informazioni non costituiscono elemento contrattuale..

Dettagli

  • ID Annuncio: 49211683
  • Prezzo: € 1.059.000
  • Superficie: 330 m²
  • Pubblicazione: 28/08/2025
  • Tipologia:
  • Bagni: 3
  • Contratto:

Informazioni addizionali

  • Arredamento: Non Specificato
  • Riscaldamento: Non Specificato
  • Cucina: Angolo cottura
  • Condizioni: Nuovo

Efficienza Energetica

  • Classe Energetica:
  • I.P.E.: 0

Indirizzo Caricamento...