logo mondocasa

Appartamento

€ 25.542

  • in Vendita
  • Locali: 1
  • Bagno: 1
  • Mq.: 54

Descrizione

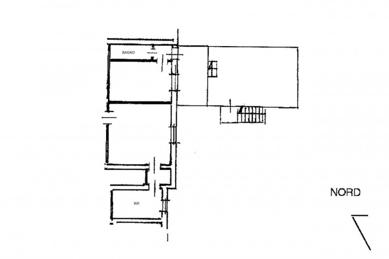
Quest’immobile viene venduto tramite asta online. Appartamento, sito nel Comune di Volon (VR), Frazione Zevio, Piazza della Repubblica (Via Nascimbeni). Dislocato nella zona centrale della frazione. Trattasi di appartamento situato al piano primo con accesso indipendente da scala esterna che si diparte da corte in comune con altre unità.

Internamente è così distribuito: cucina, bagno, salotto e ripostiglio. Sono presenti difformità, come meglio specificato in perizia (pag 11). I beni mobili presenti all’interno dell’unità non sono oggetto della presente vendita. Per maggiori dettagli consultare la documentazione allegata. Bene descritto in perizia come LOTTO N°5. Sono compresi nella vendita i proporzionali diritti di comproprietà su beni comuni e parti di uso comune. Quimmo.it: iniziativa tech del Gruppo illimity specializzata nell’intermediazione digitale di beni immobili provenienti da tribunali, nuovi sviluppi immobiliari, financial institutions e libero mercato. Da oltre 10 anni Quimmo.it è il portale specializzato nella compravendita di immobili tramite asta giudiziaria. Il portale è infatti iscritto nel Registro Gestori della vendita telematica e nell’elenco dei siti web autorizzati allo svolgimento della pubblicità legale. Con Quimmo puoi scegliere tra migliaia di immobili di ogni tipo e partecipare alle aste online per acquistare la soluzione più adatta alle tue esigenze. Affidati all’esperienza decennale dei nostri esperti e richiedi l’assistenza gratuita per la presentazione e compilazione dell’offerta. Contattaci subito. --- annuncio pubblicato con GESTIONALEIMMOBILIARE.it.

Dettagli

  • ID Annuncio: 49220559
  • Prezzo: € 25.542
  • Superficie: 54 m²
  • Pubblicazione: 21/10/2025
  • Tipologia:
  • Locali: 1
  • Bagni: 1
  • Contratto:

Informazioni addizionali

  • Arredamento: Non Specificato
  • Riscaldamento: Non Specificato
  • Cucina: Non Specificata
  • Condizioni: Da Ristrutturare

Efficienza Energetica

  • Classe Energetica: Non Comunicata
  • I.P.E.: 0.00 kWh/m2anno

Indirizzo Caricamento...