logo mondocasa
Emilia Romagna - Provincia di Ravenna - Alfonsine

Negozio

€ 380.000

  • in Vendita
  • Locali: 1
  • Bagno: 1
  • Mq.: 370

Descrizione

A pochi passi dal centro di Alfonsine, in una posizione di grande visibilità e con ottima accessibilità veicolare, proponiamo in vendita un locale commerciale moderno e funzionale, pronto ad accogliere nuove attività imprenditoriali. Un’ottima opportunità per chi cerca spazi ampi, efficienti e ben distribuiti, in un contesto urbano vivo, servito e dinamico.

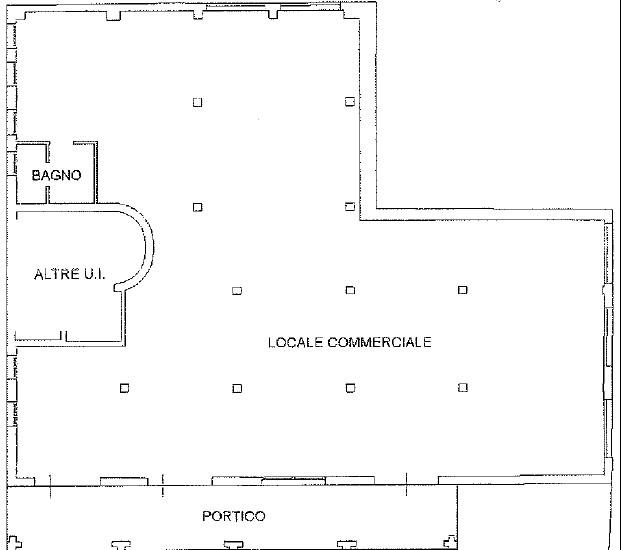
Situato al piano terra di un edificio di recente costruzione, il negozio si sviluppa su una superficie commerciale di 370 mq, completata da un piazzale esclusivo di 360 mq con parcheggi privati. Gli spazi interni, razionali e facilmente adattabili a diverse esigenze, si prestano perfettamente ad attività al dettaglio, studi professionali o showroom. Le dotazioni tecniche garantiscono efficienza, comfort e risparmio nei costi di gestione, con particolare attenzione all’impatto energetico. Composizione dell’immobile • Piano terra: ampio locale commerciale, bagno, portico • Piazzale esterno con parcheggi di 360 mq e doppio ingresso carrabile Dotazioni tecniche dell’immobile • Infissi in alluminio con doppi vetri anti sfondamento • Riscaldamento e raffrescamento centralizzati con contacalorie • Impianto a pompa di calore e solare termico per acqua calda • Pavimenti in gres, rivestimento a cappotto, struttura antisismica Contattaci per fissare una visita e scoprire di persona tutte le potenzialità di questo spazio. Un dettaglio interessante? L’intero stabile è stato concepito per garantire accessibilità totale, anche a persone con mobilità ridotta: un aspetto spesso trascurato ma decisivo per molte attività..

Dettagli

  • ID Annuncio: 49231271
  • Prezzo: € 380.000
  • Superficie: 370 m²
  • Pubblicazione: 25/09/2025
  • Tipologia:
  • Locali: 1
  • Bagni: 1
  • Contratto:

Informazioni addizionali

  • Arredamento: Non Specificato
  • Riscaldamento: Non Specificato
  • Cucina: Non Specificata
  • Condizioni: Ottimo Stato

Efficienza Energetica

  • Classe Energetica:
  • I.P.E.: 144,85 KWh/m²a

Indirizzo Caricamento...