logo mondocasa
Emilia Romagna - Provincia di Forli Cesena - Cesena

Indipendente

€ 700.000

  • in Vendita
  • Locali: 7
  • Bagni: 4
  • Mq.: 375

Descrizione

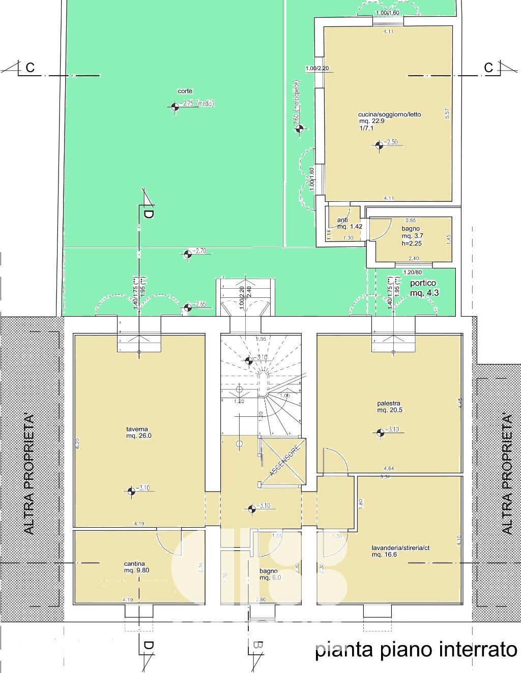
CESENA centro città. Vendiamo un ampio fabbricato terratetto allo stato grezzo interno, disposto su quattro livelli con predisposizione per ascensore, già ristrutturato in tutte le parti strutturali. Attualmente progettato come importante abitazione unifamiliare con il garage, un giardino privato e la dependance per gli ospiti o il personale di servizio.

Il fabbricato è attualmente privo di pareti divisorie interne, quindi è possibile modificarne la distribuzione degli ambienti e vista l'ampia superficie è possibile realizzare due unità abitative. L'attuale progettazione prevede questa distribuzione : Piano interrato con taverna, cantina, lavanderia/stireria, palestra, bagno, giardino con dependance (monolocale). Piano terra con ingresso e garage doppio. Primo piano con soggiorno, cucina /pranzo, dispensa, studio, terrazzo, bagno. Piano secondo con tre camere da letto matrimoniali con relative cabine armadio, due bagni. Piano soppalcato raggiungibile direttamente dalla camera da letto principale. Nel fabbricato è già stato realizzato il vano ascensore che servirà tutti i piani. Per informazioni ACASA_Cesena -Via Marinelli 113- Andrea Placuzzi 328/8255174. Tutte le nostre proposte su : www.acasa.info NB: le presenti informazioni non costituiscono elemento contrattuale..

Dettagli

  • ID Annuncio: 49242239
  • Prezzo: € 700.000
  • Superficie: 375 m²
  • Pubblicazione: 24/07/2025
  • Tipologia:
  • Locali: 7
  • Bagni: 4
  • Contratto:

Informazioni addizionali

  • Arredamento: Vuoto
  • Riscaldamento: Non Specificato
  • Cucina: Cucina abitabile
  • Condizioni: Ristrutturato

Efficienza Energetica

  • Classe Energetica: Non Comunicata
  • I.P.E.: 0

Indirizzo Caricamento...