logo mondocasa

Indipendente

€ 119.000

  • in Vendita
  • Locali: 12
  • Mq.: 455

Descrizione

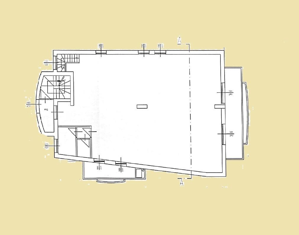
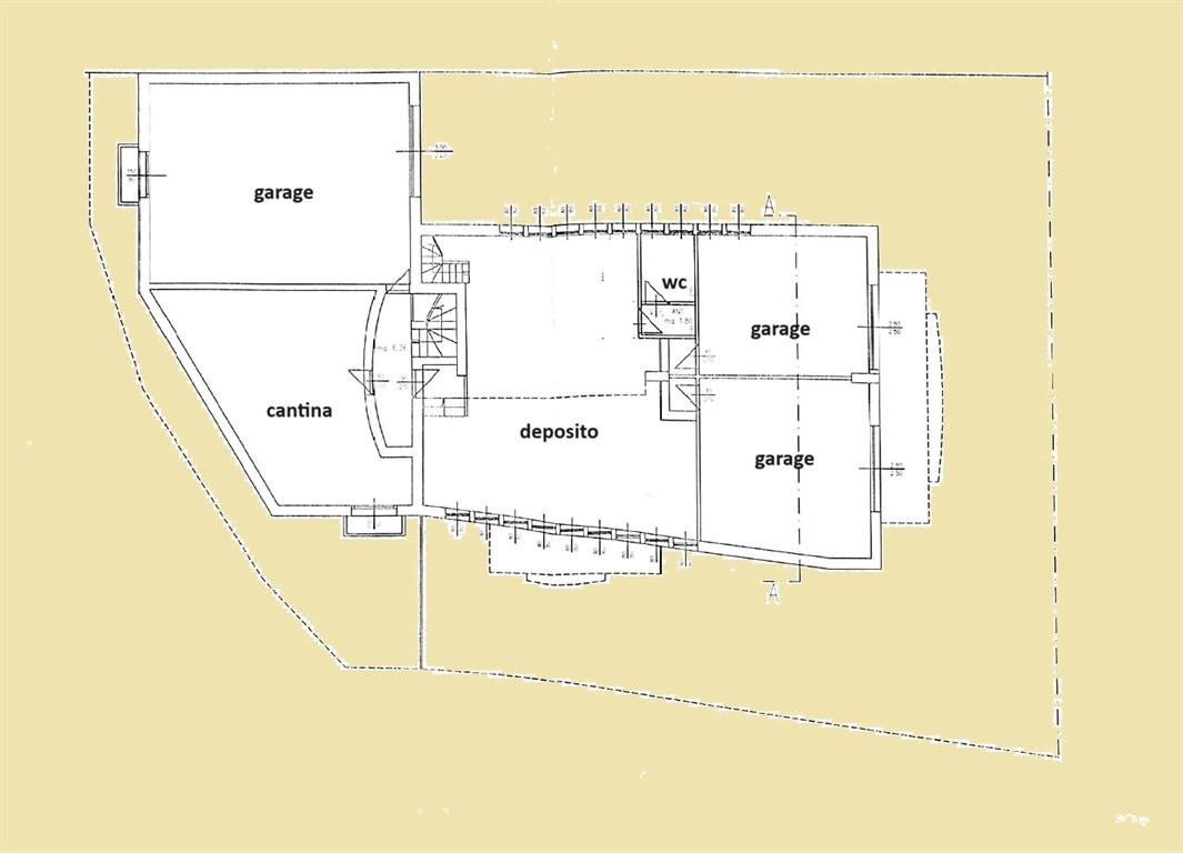
SORRIVOLI - nel caratteristico borgo, ai piedi del castello, si vende una grande casa indipendente con due appartamenti attualmente allo stato grezzo. La costruzione tutta realizzata in cemento armato con solide fondazioni su pali trivellati e tamponamenti in laterizio tipo Poroton, è organizzata su due livelli abitativi fuori terra e un piano interrato ad uso servizi.

Un vano scala funge da ingresso, distribuzione e collegamento di tutti i piani. Le ampie superfici consentono di realizzare due enormi appartamenti, il piano terra può essere adibito ad attività di ristorazione, il piano interrato ospita tre garages oltre alle cantine e ai servizi. Terreno pertinenziale 1.100 mq, disponibili ulteriori 1200 mq. Interessante soluzione per due o tre famiglie o per una attività ricettiva di b&b o altro. Per informazioni ACASA_CESENA: Geom. Andrea Placuzzi tel 328/8255174. Tutte le proposte su ACASA.INFO. NB le presenti informazioni non costituiscono elemento contrattuale.

Dettagli

  • ID Annuncio: 49242307
  • Prezzo: € 119.000
  • Superficie: 455 m²
  • Pubblicazione: 24/07/2025
  • Tipologia:
  • Locali: 12
  • Contratto:

Informazioni addizionali

  • Arredamento: Non Specificato
  • Riscaldamento: Non Specificato
  • Cucina: Non Specificata
  • Condizioni: Non Specificate

Efficienza Energetica

  • Classe Energetica: Non Comunicata
  • I.P.E.: 0

Indirizzo Caricamento...