logo mondocasa
Emilia Romagna - Provincia di Forli Cesena - Cesena

Semi-indipendente

€ 478.000

  • in Vendita
  • Locali: 5
  • Bagni: 2
  • Mq.: 190

Descrizione

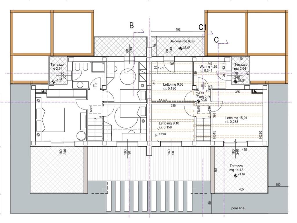
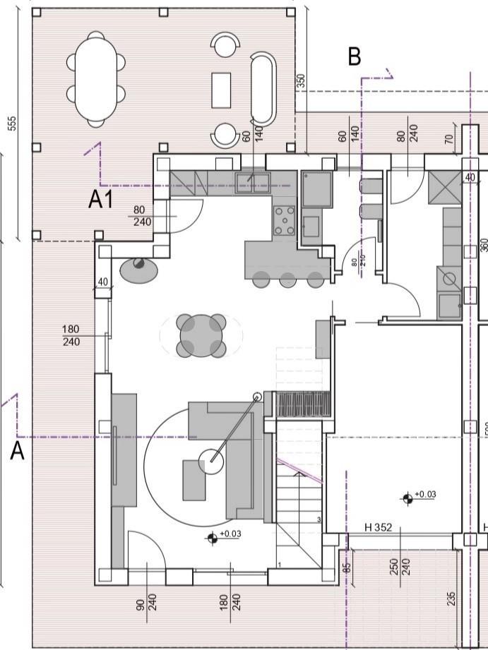
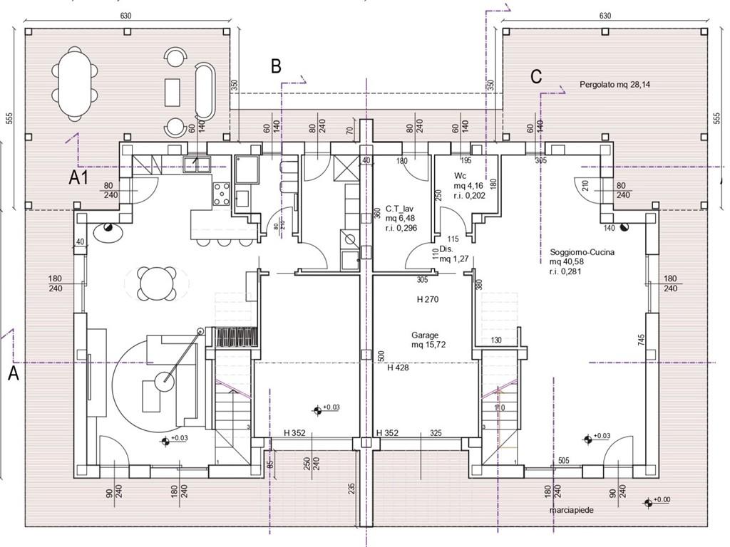
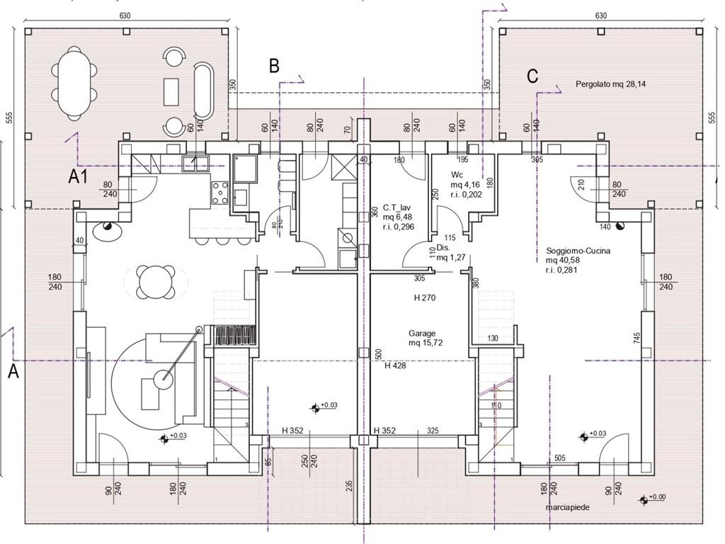
CESENA nel quartiere Cervese Nord, proponiamo una nuova costruzione di due villette bifamiliari ciascuna con giardino privato di 1000 mq. La costruzione attualmente in corso è realizzata in edilizia tradizionale: strutture in cemento armato, tamponamento in laterizio tipo Poroton, cappotto termico in Eps e tetto in legno lamellare a vista, ventilato e coibentato per ottenere una classe energetica A4.

Ogni villetta è composta da una zona giorno del tipo openspace con cucina a vista, un bagno ospiti e il locale centrale termica-lavanderia. Dal soggiorno si accede alla zona relax esterna dotata di un pergolato, in continuità con il giardino a garanzia di privacy e temperature più fresche nel periodo estivo. Al piano primo la zona notte è composta da tre camere da letto e un bagno, serviti da due terrazzi e un balcone. Completano la dotazione un garage e tre posti auto privati nella corte. Impiantistica di prim'ordine con riscaldamento a pavimento alimentato da pompa di calore, impianto fotovoltaico da 3 kw, ventilazione meccanica controllata. Il capitolato è definito ma le finiture saranno personalizzabili. Infissi in pvc con vetri camera bassoemissivi e tapparelle in alluminio motorizzate. Prezzo da 478.000 euro Per informazioni ACASA_CESENA: Geom. Andrea Placuzzi tel 328/8255174. Tutte le proposte su ACASA.INFO. NB le presenti informazioni non costituiscono elemento contrattuale..

Dettagli

  • ID Annuncio: 49242326
  • Prezzo: € 478.000
  • Superficie: 190 m²
  • Pubblicazione: 24/07/2025
  • Tipologia:
  • Locali: 5
  • Bagni: 2
  • Contratto:

Informazioni addizionali

  • Arredamento: Vuoto
  • Riscaldamento: Non Specificato
  • Cucina: Cucina a vista
  • Condizioni: Nuovo

Efficienza Energetica

  • Classe Energetica:
  • I.P.E.: 0

Indirizzo Caricamento...