logo mondocasa

Appartamento

€ 160.000

  • in Vendita
  • Locali: 7
  • Mq.: 349

Descrizione

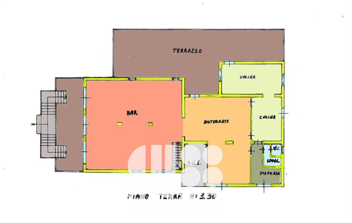
- Roncofreddo. Il frazione del comune, direttamente collegata con la SS n. 3 bis Tiberina, si vende immobile commerciale trasformabile in residenziale con soluzione a due/tre appartamenti, con annessi garage. La soluzione disposta al piano terra si compone di ampi vani, terrazzi e servizi.

Accesso al seminterrato con due vani deposito/cantina, bagni e garage. Per informazioni aCasa_mercato: Tatiana Tel 366/5854405 - Andrea Tel. 348/4002517 Tutte le nostre proposte su ACASA.INFO N.B. Le presenti informazioni non costituiscono elemento contrattuale..

Dettagli

  • ID Annuncio: 49242338
  • Prezzo: € 160.000
  • Superficie: 349 m²
  • Pubblicazione: 24/07/2025
  • Tipologia:
  • Locali: 7
  • Contratto:

Informazioni addizionali

  • Arredamento: Non Specificato
  • Riscaldamento: Non Specificato
  • Cucina: Cucina abitabile
  • Condizioni: Non Specificate

Efficienza Energetica

  • Classe Energetica: Non Comunicata
  • I.P.E.: 0