logo mondocasa
Emilia Romagna - Provincia di Forli Cesena - Cesena

Terreno

€ 250.000

  • in Vendita
  • Mq.: 5.000

Descrizione

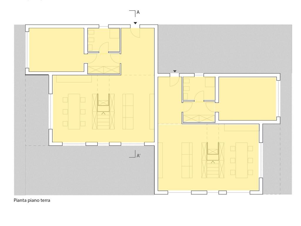
CESENA Ruffio. Si vende un terreno edificabile di 5.000 mq per la nuova costruzione di una villa bifamiliare. Le due unità immobiliari avranno una cubatura di 447 e 528 metri cubi a cui aggiungere i vani tecnici non conteggiabili. Tali volumi derivano dalla demolizione di due vecchi fabbricati colonici come previsto dalla attuale normativa del PUG.

La proposta progettuale è puramente indicativa e non è stata sottoposta al parere preventivo del Comune di Cesena. PLUS: posizione in direzione mare a breve distanza dalla città; nessun vincolo progettuale e costruttivo; terreno di 2.500 mq per ogni unità. Per informazioni ACASA_CESENA : Andrea Placuzzi tel 328/8255174. Tutte le proposte su ACASA.INFO. NB le presenti informazioni non costituiscono elemento contrattuale..

Dettagli

  • ID Annuncio: 49242345
  • Prezzo: € 250.000
  • Superficie: 5.000 m²
  • Pubblicazione: 24/07/2025
  • Tipologia:
  • Contratto:

Informazioni addizionali

  • Arredamento: Non Specificato
  • Riscaldamento: Non Specificato
  • Cucina: Non Specificata
  • Condizioni: Non Specificate

Efficienza Energetica

  • Classe Energetica: Non Comunicata
  • I.P.E.: 0

Indirizzo Caricamento...