logo mondocasa
Emilia Romagna - Provincia di Forli Cesena - Cesena

Villetta A Schiera

€ 190.000

  • in Vendita
  • Locali: 11
  • Bagni: 3
  • Mq.: 200

Descrizione

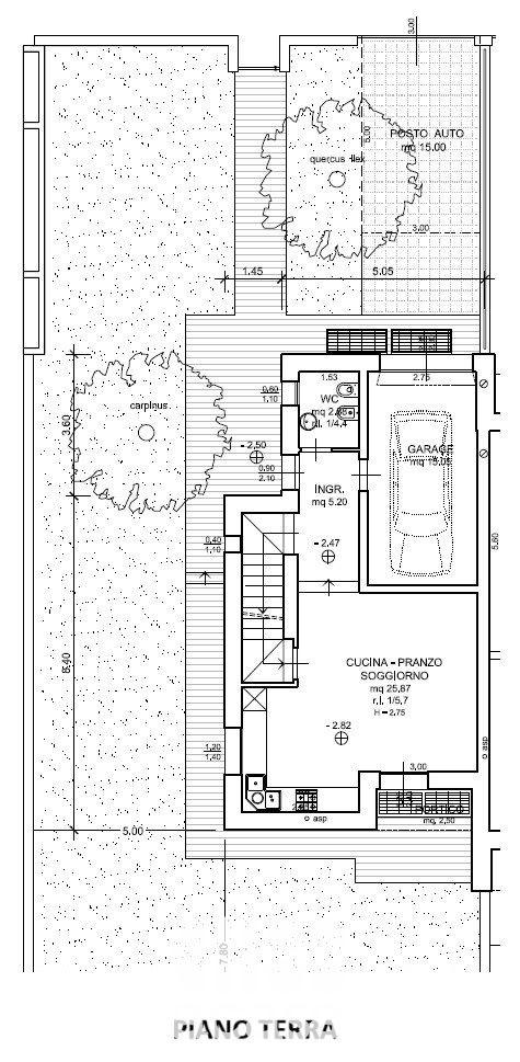
CESENA - BORELLO Immagina una villetta a schiera ad angolo disposta su tre livelli, attualmente allo stato grezzo, pronta per essere rifinita e personalizzata secondo i tuoi gusti. Un’occasione unica per modellare ogni ambiente in base al tuo stile di vita, grazie a spazi ampi e versatili.

È disponibile un progetto con computo metrico che prevede una distribuzione moderna e funzionale. Al piano terra troviamo un luminoso soggiorno con accesso al giardino su tre lati, ideale per creare un’area verde, giochi o relax. La cucina è separata e spaziosa, affiancata da un bagno finestrato e da un garage collegato internamente con porta tagliafuoco. Il piano interrato offre una taverna adattabile a vari usi, con centrale termica, ripostiglio e un secondo bagno. Al primo piano sono previste tre camere (due singole e una matrimoniale), tutte con balcone in loggia, e un bagno finestrato. La mansarda è perfetta come quarta camera, studio o spazio hobby, con buona altezza e riservatezza. Il giardino angolare, ampio e riservato, permette di realizzare orti, zone barbecue o angoli relax, garantendo maggiore privacy rispetto alle altre unità. In sintesi, una proprietà dal grande potenziale, pronta per diventare la casa che hai sempre sognato. CHIAMAMI PER FISSARE PER ULTERIORI INFORMAZIONI O PER FISSARE UNA VISITA! ACASA_CESENA : Andrea Placuzzi tel 328/8255174. Tutte le proposte su ACASA.INFO NB le presenti informazioni non costituiscono elemento contrattuale..

Dettagli

  • ID Annuncio: 49242438
  • Prezzo: € 190.000
  • Superficie: 200 m²
  • Pubblicazione: 04/08/2025
  • Tipologia:
  • Locali: 11
  • Bagni: 3
  • Contratto:

Informazioni addizionali

  • Arredamento: Non Specificato
  • Riscaldamento: Non Specificato
  • Cucina: Cucina a vista
  • Condizioni: Nuovo

Efficienza Energetica

  • Classe Energetica: Non Comunicata
  • I.P.E.: 0