logo mondocasa
Emilia Romagna - Provincia di Forli Cesena - Gatteo

Semi-indipendente

€ 260.000

  • in Vendita
  • Bagno: 1
  • Mq.: 120

Descrizione

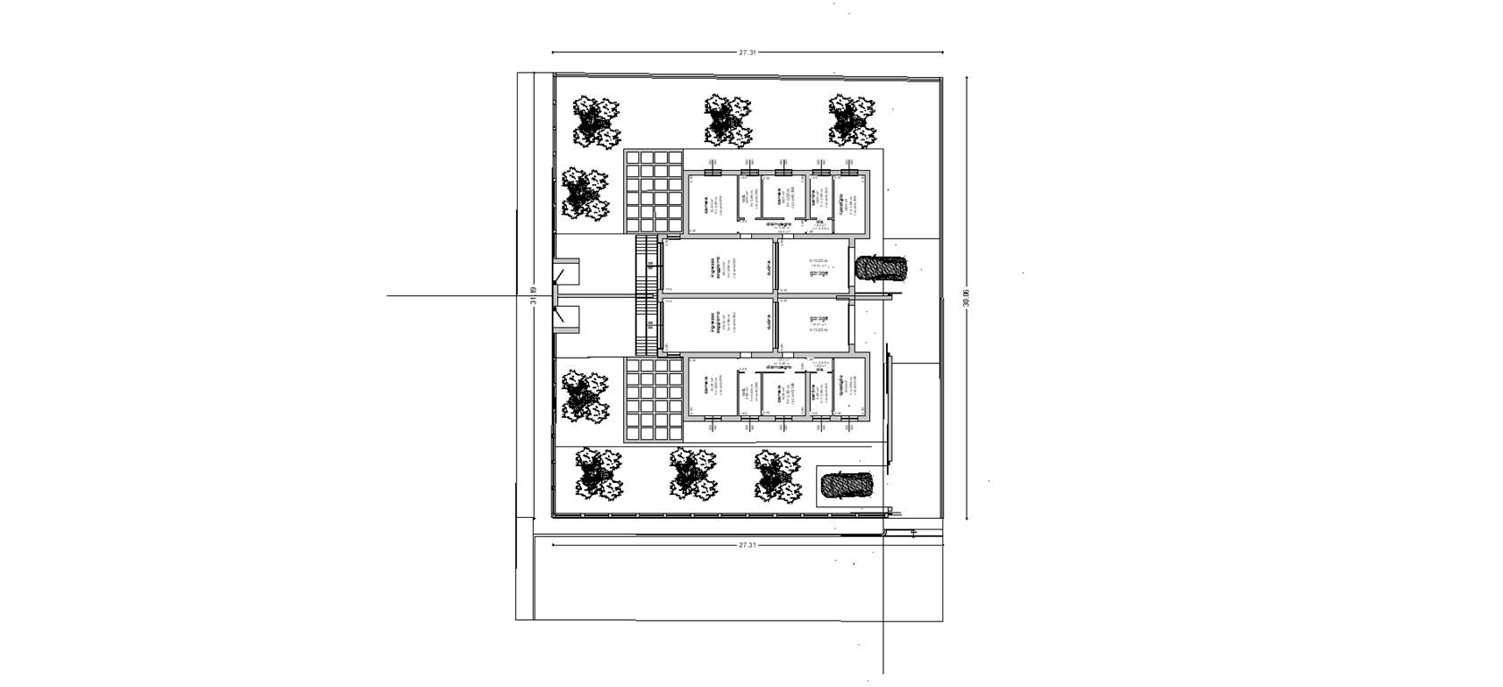
GATTEO A MARE (FC) – VILLETTE BIFAMILIARI DI NUOVA COSTRUZIONE A DUE PASSI DAL MARE In ottima posizione residenziale, a breve distanza dal mare, dall’Iper e comoda alle principali vie di comunicazione, proponiamo villette bifamiliari di prossima realizzazione, ideali come prima casa o casa vacanze.

Le unità saranno consegnate al grezzo, con possibilità di concordare le finiture fino al chiavi in mano e personalizzare gli ambienti secondo le proprie esigenze. Ogni villetta insiste su lotti di circa 420 mq, si sviluppa principalmente al piano terra con possibilità di soppalco, ed è composta da: – Ampia e luminosa zona giorno con cucina a vista – Due camere da letto, con possibilità di ricavare una terza camera o studio – Bagno finestrato e ripostiglio – Pergolato esterno per zona relax, corte e giardino privati – Ingresso indipendente, garage e posto auto Soluzioni disponibili: – Villetta 1: €260.000 – Villetta 2: €280.000 Ottima opportunità per chi cerca indipendenza, comfort e vicinanza al mare. Per informazioni ACASA_CESENATICO: Michele Aguzzoni Tel 320.2954985 Tutte le proposte su ACASA.INFO NB Le presenti informazioni non costituiscono elemento contrattuale..

Dettagli

  • ID Annuncio: 49242463
  • Prezzo: € 260.000
  • Superficie: 120 m²
  • Pubblicazione: 24/07/2025
  • Tipologia:
  • Bagni: 1
  • Contratto:

Informazioni addizionali

  • Arredamento: Non Specificato
  • Riscaldamento: Non Specificato
  • Cucina: Cucina abitabile
  • Condizioni: Nuovo

Efficienza Energetica

  • Classe Energetica: Non Comunicata
  • I.P.E.: 0