logo mondocasa
  • in Vendita
  • Mq.: 200

Descrizione

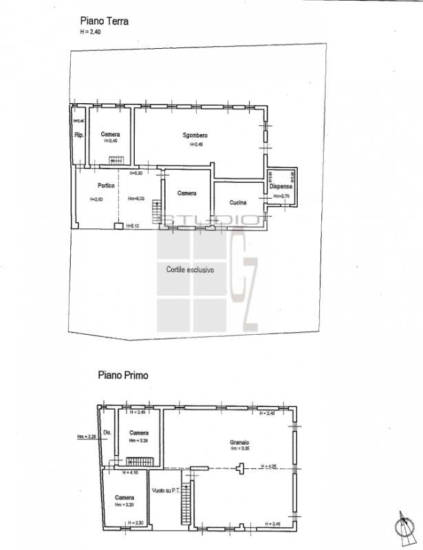
Proponiamo in vendita soluzione di RUSTICO sviluppato su due livelli. L'immobile è circondato da tre lati dal GIARDINO ESCLUSIVO: uno scoperto privato di circa 2.000 metri quadri. La casa gode delle vista e della tranquillità che solo la campagna veneta può donare! L'abitazione, sviluppata su un due livelli, si compone al piano terra di: - portico; - dispensa; - cucina; - due camere; - ripostiglio - sgombero; Al primo piano troviamo: - DUE camere; - granaio.

Parte dello scoperto attualmente è adibito a VIGNETO. Classificazione energetica: in fase di definizione Prezzo: Euro 59.000,00 Riferimento: ABB_01 Le informazioni sono il più accurate possibili tuttavia potrebbero esserci delle imprecisioni involontarie, pertanto la descrizione non ha valore contrattuale. --- annuncio pubblicato con GESTIONALEIMMOBILIARE.it.

Dettagli

  • ID Annuncio: 49262739
  • Prezzo: € 59.000
  • Superficie: 200 m²
  • Pubblicazione: 20/10/2025
  • Tipologia:
  • Contratto:

Informazioni addizionali

  • Arredamento: Non Specificato
  • Riscaldamento: Non Specificato
  • Cucina: Non Specificata
  • Condizioni: Da Ristrutturare

Efficienza Energetica

  • Classe Energetica: Non Comunicata
  • I.P.E.: 0.00 kWh/m2anno

Indirizzo Caricamento...