logo mondocasa

Indipendente

€ 99.000

  • in Vendita
  • Locali: 9
  • Mq.: 570

Descrizione

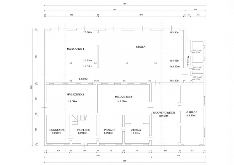
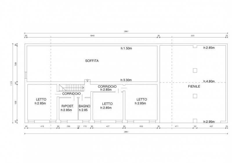
Rif. S421 - Proponiamo in vendita, in zona Saletto, frazione di Borgo Veneto, pregevole immobile residenziale di 2 piani fuori terra a pochi passi dai servizi e comodo alle vie di comunicazione. L'immobile, inserito armoniosamente nell'adiacente e gradevole sobborgo, offre la cubatura ideale per realizzare una rivalutazione dell'intero edificio in ambito immobiliare.

La cubatura presente (2.800 metri cubi) è ideale per ricavare n. 6 unità immobiliari secondo bozza di progetto già esistente. La proprietà comprende un'area scoperta di pertinenza di circa 2000 mq e prevede una ristrutturazione in chiave moderna con la realizzazione di più unità residenziali al suo interno, con la possibilità di sviluppare un residence o villette bifamiliari/schiere con i più elevati standard energetici e materiali all'avanguardia. Maggiori info in agenzia. Con un'esperienza di oltre trent'anni, l'immobiliare Principe Umberto opera con professionalità nel campo dell'intermediazione di immobili e aziende fornendo servizi mirati e consulenze personalizzate. Nell'acquisto, nella vendita, nell'affitto e nella progettazione, trattiamo con la stessa cura alloggi di piccole e grandi dimensioni. ATTENZIONE: si comunica che l'indirizzo riportato nell'annuncio non corrisponde all'esatta collocazione dell'immobile, per informazioni sulla sua precisa localizzazione e per le planimetrie si prega di contattare l'agenzia. Per info: Immobiliare Principe Casa - Piazza Maggiore, 20 - Este (PD) oppure contattare i numeri Tel.0429/602835 - Cell.335/1017033. Per altri annunci visita il nostro sito www.pincipecasa.it --- annuncio pubblicato con GESTIONALEIMMOBILIARE.it.

Dettagli

  • ID Annuncio: 49277483
  • Prezzo: € 99.000
  • Superficie: 570 m²
  • Pubblicazione: 22/09/2025
  • Tipologia:
  • Locali: 9
  • Contratto:

Informazioni addizionali

  • Arredamento: Non Specificato
  • Riscaldamento: Non Specificato
  • Cucina: Cucina abitabile
  • Condizioni: Da Ristrutturare

Efficienza Energetica

  • Classe Energetica: Non Comunicata
  • I.P.E.: 0.00 kWh/m2anno

Indirizzo Caricamento...