logo mondocasa

Villetta A Schiera

€ 32.250

  • in Vendita
  • Locali: 2
  • Bagno: 1
  • Mq.: 83

Descrizione

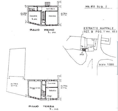
Rif. A.A.306-23 Vendita all'asta - porzione di casa in linea su due piani in data 22 ottobre 2025 Descrizione: trattasi di una porzione di casa di impianto storico, in linea, a due piani fuori terra (piano terra e primo), con ampio scoperto di pertinenza, oltre da un manufatto rappresentato da tettoia aperta.

L'unità immobiliare, della superficie complessiva di mq.83, è composta da ingresso-soggiorno, ripostiglio, lavatoio-sottoscala, vano scala, cucina-pranzo al piano terra, da didimpegno, bagno e n.2 camere al piano primo. L'immobile viene venduto tramite asta giudiziaria, ed il prezzo indicato si riferisce al prezzo minimo accettato per la partecipazione all’asta Aste-Affari fornisce un servizio di assistenza e consulenza tecnica , legale, fiscale e finanziaria su acquisti all’asta e affari immobiliari , al fine di rendere più facile e sicuro l'acquisto di un immobile proveniente dal mercato giudiziario oppure da occasioni presenti sul mercato immobiliare . Analisi di fattibilità , tecnica, burocratica, finanziaria , legale , esame problematiche e vincoli , conteggio costi accessori ed occulti, assistenza in tutte le fasi della procedura fino alla consegna delle chiavi dell’immobile . L'acquisto può essere finanziato tramite mutuo , e , ove possibile , anche in pre-asta tramite procedura di saldo-stralcio . Soluzioni personalizzate per i debitori . Prezzo minimo base asta : euro 32.250,00 Per info aggiuntive , prenotazione visione, consulenza ed assistenza Studio di Consulenza : “aste-affari.com” Info : 042217801118 – 04221780185 www.aste-affari.com --- annuncio pubblicato con GESTIONALEIMMOBILIARE.it.

Dettagli

  • ID Annuncio: 49381048
  • Prezzo: € 32.250
  • Superficie: 83 m²
  • Pubblicazione: 22/09/2025
  • Tipologia:
  • Locali: 2
  • Bagni: 1
  • Contratto:

Informazioni addizionali

  • Arredamento: Arredato
  • Riscaldamento: Non Specificato
  • Cucina: Cucina abitabile
  • Condizioni: Non Specificate

Efficienza Energetica

  • Classe Energetica:
  • I.P.E.: 0.00 kWh/m2anno

Indirizzo Caricamento...