logo mondocasa

Attivita' Commerciale

€ 149.000

  • in Vendita
  • Bagni: 3
  • Mq.: 330

Descrizione

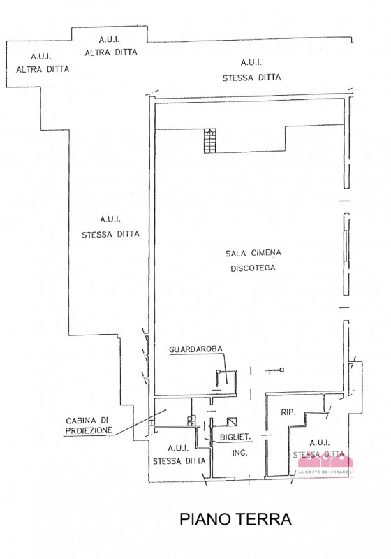
PONTE DI NANTO: INTERO COMPLESSO DA RISTRUTTURARE IN AREA CENTRALISSIMA, CON AMPIO GIARDINO IDEALE PER UNA O DIVERSE ATTIVITA' COMMERCIALI. RIF. VCAP12B. RICHIESTA EURO 149.000. CHIAMA ALESSANDRA +39 329 938 8197 O SCRIVI A: alessandra@lacortedeimiracoli.

eu Nel cuore di Nanto, proponiamo in vendita un’interessante soluzione composta da un’ex pizzeria con giardino, un ex cinema e due piccoli negozi adiacenti, con possibilita' di utilizzo a deposito. Si tratta di una proprietà dal grande potenziale, perfetta per chi cerca ampi spazi da rinnovare e personalizzare secondo le proprie esigenze. L’immobile, attualmente da aggiornare, si presta a molteplici destinazioni: ristorazione, attività artigianali, spazi ricreativi, coworking o sede per associazioni culturali. La superficie totale è importante e la posizione centrale nel paese garantisce visibilità e accessibilità. È un’opportunità ideale per imprenditori locali, investitori o realtà che vogliono dar vita a un progetto di rigenerazione urbana. Il prezzo richiesto per l’intero blocco è di soli 149.000 euro, un’occasione rara per chi ha la visione giusta delle potenzialita' di questo complesso. Chiama Alessandra +39 329 938 8197 o scrivi a: alessandra@lacortedeimiracoli.eu. Immobiliare LA CORTE DEI MIRACOLI Piazza Pontelandolfo n.3 - Vicenza Tel. 0444 525218 www.lacortedeimiracoli.eu info@lacortedeimiracoli.eu --- annuncio pubblicato con GESTIONALEIMMOBILIARE.it.

Dettagli

  • ID Annuncio: 49424019
  • Prezzo: € 149.000
  • Superficie: 330 m²
  • Pubblicazione: 22/09/2025
  • Tipologia:
  • Bagni: 3
  • Contratto:

Informazioni addizionali

  • Arredamento: Arredato
  • Riscaldamento: Non Specificato
  • Cucina: Cucina abitabile
  • Condizioni: Buono Stato

Efficienza Energetica

  • Classe Energetica:
  • I.P.E.: 0.00 kWh/m3anno

Indirizzo Caricamento...