logo mondocasa

Cantina

€ 11.451

  • in Vendita
  • Locali: 1
  • Bagno: 1
  • Mq.: 21

Descrizione

Quest’immobile viene venduto tramite asta online. Cantina sita a Carini (PA), contrada Agliastrilli, via Don Luigi Sturzo angolo via Piemonte. Il contesto è semicentrale e poco trafficato. La zona è urbanizzata, caratterizzata da edifici residenziali, botteghe e servizi.

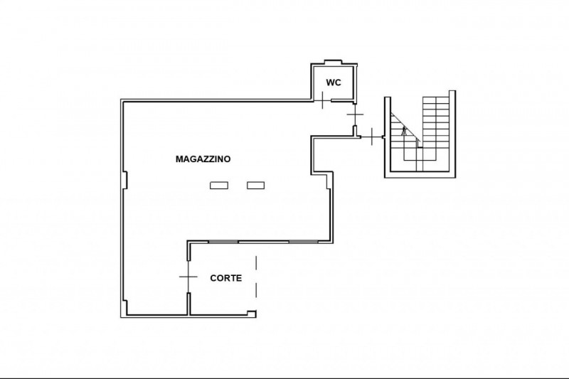
L’area è ben collegata al centro storico, a Palermo, all’aeroporto e al mare. L’unità è parte di un grande edificio polifunzionale appartenente ad una lottizzazione residenziale in due fabbricati, parzialmente da completare. Magazzino (subalterno 58) al piano primo sottostrada, servito da scala condominiale e ascensore. Ampio ambiente unico finestrato, dotato di portone blindato, servizio igienico e cortiletto privato. Pavimenti in gres e impianti da completare. Sanitari mancanti. Necessaria manutenzione. Condizioni generali discrete. Presente materiale di vario genere. Immobile descritto nella perizia allegata come LOTTO 13 Superficie commerciale: 21 mq PIANO PRIMO SOTTOSTRADA Magazzino con servizio wc Edificio A della lottizzazione Piena proprietà di: CF: Foglio 26 – Particella 3179 – Subalterno 58 – C/2 Maggiori dettagli su difformità e iter burocratici da completare disponibili su perizia e allegati IMMOBILE LIBERO. SMALTIMENTI A CARICO E SPESE DELL’AGGIUDICATARIO Offerta minima: 11451 EURO. Quimmo.it: iniziativa tech del Gruppo illimity specializzata nell’intermediazione digitale di beni immobili provenienti da tribunali, nuovi sviluppi immobiliari, financial institutions e libero mercato. Da oltre 10 anni Quimmo.it è il portale specializzato nella compravendita di immobili tramite asta giudiziaria. Il portale è infatti iscritto nel Registro Gestori della vendita telematica e nell’elenco dei siti web autorizzati allo svolgimento della pubblicità legale. Con Quimmo puoi scegliere tra migliaia di immobili di ogni tipo e partecipare alle aste online per acquistare la soluzione più adatta alle tue esigenze. Affidati all’esperienza decennale dei nostri esperti e richiedi l’assistenza gratuita per la presentazione e compilazione dell’offerta. Contattaci subito. --- annuncio pubblicato con GESTIONALEIMMOBILIARE.it.

Dettagli

  • ID Annuncio: 49424076
  • Prezzo: € 11.451
  • Superficie: 21 m²
  • Pubblicazione: 20/10/2025
  • Tipologia:
  • Locali: 1
  • Bagni: 1
  • Contratto:

Informazioni addizionali

  • Arredamento: Non Specificato
  • Riscaldamento: Non Specificato
  • Cucina: Non Specificata
  • Condizioni: Non Specificate

Efficienza Energetica

  • Classe Energetica: Non Comunicata
  • I.P.E.: 0.00 kWh/m2anno

Indirizzo Caricamento...