logo mondocasa

Capannone

€ 295.000

  • in Vendita
  • Mq: 500

Descrizione

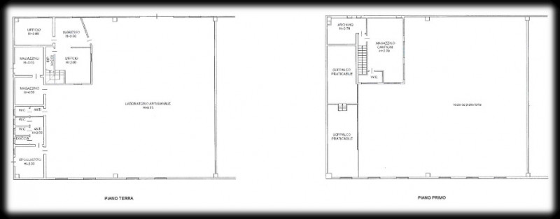
NOSTRO RIF. CP-158 Vicinanze Meolo, proponiamo in vendita in zona industriale CAPANNONE D/7 di mq 500 su un lotto di 1. 600 mq con piazzale asfaltato antistante. La struttura ha una altezza di 6. Prezzo richiesto € 295. 000 trattabili. it.

Il capannone si trova su una strada privata, con possibilità di accesso anche per i mezzi pesanti. 15 metri, uffici, bagni, spogliatoi per 150 mq soppalcati, che è possibile demolire in quanto sono in cartongesso. Il capannone necessita dei lavori di adeguamento all'interno (impianti, finestre, lucernari), mentre il tetto è stato rifatto pochi anni fa. Possibilità di aumentare la superficie coperta fino al 50% del lotto. APE in fase di definizione. ATTENZIONE LA POSIZIONE E' PURAMENTE INDICATIVA --- annuncio pubblicato con GESTIONALEIMMOBILIARE.

Dettagli

  • ID Annuncio: 49430139
  • Prezzo: € 295.000
  • Superficie: 500 m²
  • Pubblicazione: 20/10/2025
  • Tipologia:
  • Contratto:

Informazioni aggiuntive

  • Arredamento: Non Specificato
  • Riscaldamento: Non Specificato
  • Cucina: Non Specificata
  • Condizioni: Non Specificate

Efficienza Energetica

  • Classe Energetica: Non Comunicata
  • I.P.E.: 0.00 kWh/m3anno

Indirizzo Caricamento...