logo mondocasa

Laboratorio

€ 3.500

  • in Affitto
  • Mq.: 631

Descrizione

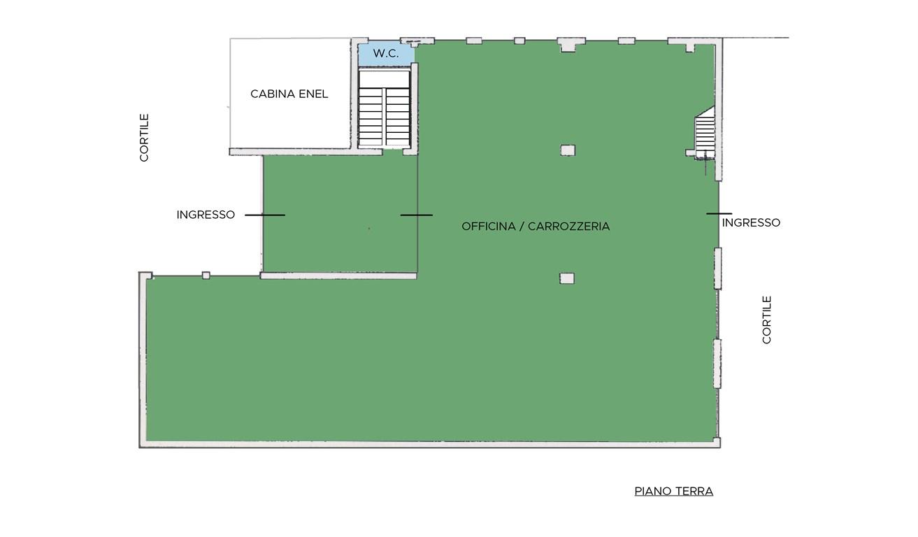
Sesto San Giovanni (MI) - Adiacenze Stazione F.S., Rondinella, Media World - in complesso artigianale/commerciale/industriale a 600m dalla fermata metropolitana MM1 I°maggio, proponiamo in locazione locali artigianali categoria catastale C/3 con annessi uffici e deposito magazzino.

Ideale per attività quali officine/carrozzerie, attività artigianali in generale e di lavorazione di prodotti semilavorati trasformati poi in manufatti finalizzati alla vendita. Canone Mensile Euro 3.500+spese oltre IVA di legge. Consegna giugno 2026. Focus altezze locali industriali artigianali/uffici h min m4.35 h max m6,95 Locali artigianali h 3m uffici.

Dettagli

  • ID Annuncio: 49430891
  • Prezzo: € 3.500
  • Superficie: 631 m²
  • Pubblicazione: 18/09/2025
  • Tipologia:
  • Contratto:

Informazioni addizionali

  • Arredamento: Semi-arredato
  • Riscaldamento: Non Specificato
  • Cucina: Cucina non presente
  • Condizioni: Buono Stato

Efficienza Energetica

  • Classe Energetica:
  • I.P.E.: 175 KWh/m²a

Indirizzo Caricamento...