logo mondocasa
  • in Vendita
  • Bagno: 1
  • Mq.: 42

Descrizione

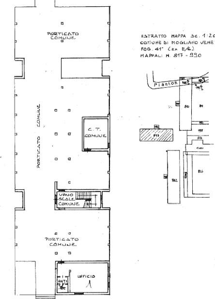
Rif. A.A.5-231 Vendita all'asta - ufficio al piano terra in data 24 ottobre 2025 Descrizione: trattasi di un appartamento ad uso ufficio sito al piano terra di un complesso immobiliare condominiale. L'unità immobiliare, della superficie commerciale complessiva di ca mq.

42, è composta da due ambienti principali e da un servizio igienico munito di antibagno, ed occupa una porzione del portico condominiale sul quale si affaccia l'accesso. L'immobile viene venduto tramite asta giudiziaria, ed il prezzo indicato si riferisce al prezzo minimo accettato per la partecipazione all’asta . Aste-Affari fornisce un servizio di assistenza e consulenza tecnica , legale, fiscale e finanziaria su acquisti all’asta e affari immobiliari , al fine di rendere più facile e sicuro l'acquisto di un immobile proveniente dal mercato giudiziario oppure da occasioni presenti sul mercato immobiliare . Analisi di fattibilità , tecnica, burocratica, finanziaria , legale , esame problematiche e vincoli , conteggio costi accessori ed occulti, assistenza in tutte le fasi della procedura fino alla consegna delle chiavi dell’immobile . L'acquisto può essere finanziato tramite mutuo , e , ove possibile , anche in pre-asta tramite procedura di saldo-stralcio . Soluzioni personalizzate per i debitori . Prezzo minimo base asta : euro 10.500,00 Per info aggiuntive , prenotazione visione, consulenza ed assistenza Studio di Consulenza : “aste-affari.com” Info : 042217801118 – 04221780185 www.aste-affari.com --- annuncio pubblicato con GESTIONALEIMMOBILIARE.it.

Dettagli

  • ID Annuncio: 49434862
  • Prezzo: € 10.500
  • Superficie: 42 m²
  • Pubblicazione: 22/09/2025
  • Tipologia:
  • Bagni: 1
  • Contratto:

Informazioni addizionali

  • Arredamento: Arredato
  • Riscaldamento: Non Specificato
  • Cucina: Non Specificata
  • Condizioni: Buono Stato

Efficienza Energetica

  • Classe Energetica:
  • I.P.E.: 0.00 kWh/m3anno

Indirizzo Caricamento...