logo mondocasa

Semi-indipendente

€ 152.511

  • in Vendita
  • Locali: 3
  • Bagni: 2
  • Mq.: 177

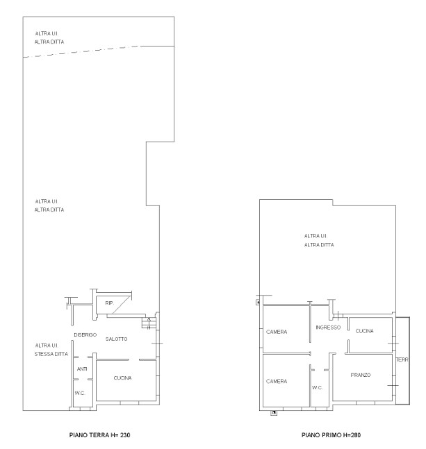
Descrizione

Rif. A.A.94-241 Vendita all'asta - bifamiliare su due livelli in data 21 ottobre 2025 Descrizione: trattasi di porzione di bifamiliare disposta su due livelli e sita nel comune di Mira (VE) località Piazza Vecchia. L'unità immobiliare, della superficie commerciale complessiva di mq.

177, è composta al piano terra da ingresso che immette nel salotto, a sinistra del quale si trova la cucina abitabile, disbrigo che immette a sinistra in bagno, dal disbrigo si accede anche alla camera da letto ricavata al posto del garage; dal salotto, salendo tre scalini, ci si immette nel vano scala comune e salendo una rampa di scale, a sinistra si accede al piano primo composto da ingresso, cucina e soggiorno, bagno e due camere da letto; terrazza accessibile da cucina e soggiorno. L'immobile viene venduto tramite asta giudiziaria, ed il prezzo indicato si riferisce al prezzo minimo accettato per la partecipazione all’asta . Aste-Affari fornisce un servizio di assistenza e consulenza tecnica , legale, fiscale e finanziaria su acquisti all’asta e affari immobiliari , al fine di rendere più facile e sicuro l'acquisto di un immobile proveniente dal mercato giudiziario oppure da occasioni presenti sul mercato immobiliare . Analisi di fattibilità , tecnica, burocratica, finanziaria , legale , esame problematiche e vincoli , conteggio costi accessori ed occulti, assistenza in tutte le fasi della procedura fino alla consegna delle chiavi dell’immobile . L'acquisto può essere finanziato tramite mutuo , e , ove possibile , anche in pre-asta tramite procedura di saldo-stralcio . Soluzioni personalizzate per i debitori . Prezzo minimo base asta : euro 152.511,00 Per info aggiuntive , prenotazione visione, consulenza ed assistenza Studio di Consulenza : “aste-affari.com” Info : 042217801118 – 04221780185 www.aste-affari.com --- annuncio pubblicato con GESTIONALEIMMOBILIARE.it.

Dettagli

  • ID Annuncio: 49440773
  • Prezzo: € 152.511
  • Superficie: 177 m²
  • Pubblicazione: 22/09/2025
  • Tipologia:
  • Locali: 3
  • Bagni: 2
  • Contratto:

Informazioni addizionali

  • Arredamento: Arredato
  • Riscaldamento: Climatizzato
  • Cucina: Cucina abitabile
  • Condizioni: Non Specificate

Efficienza Energetica

  • Classe Energetica:
  • I.P.E.: 0.00 kWh/m2anno

Indirizzo Caricamento...