logo mondocasa

Villetta A Schiera

€ 131.250

  • in Vendita
  • Locali: 3
  • Bagni: 2
  • Mq.: 216

Descrizione

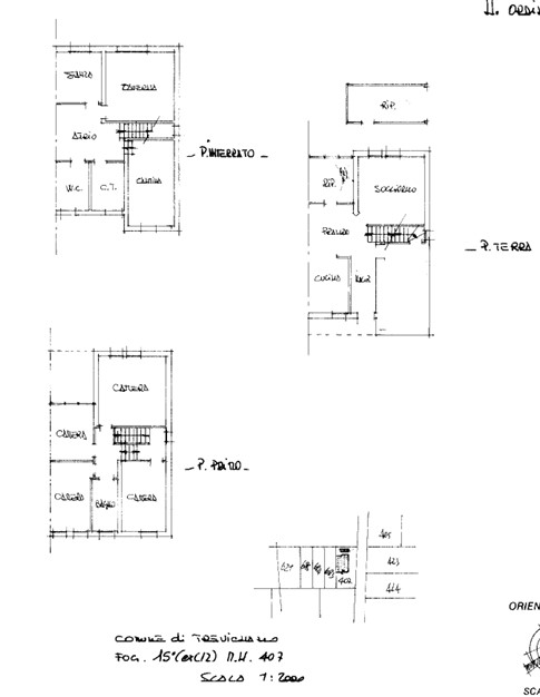
Rif. A.A.512-231 Vendita all'asta - schiera di testa su tre piani in data 21 ottobre 2025 Descrizione: trattasi di un'unità abitativa su tre piani, con area cortilizia, del tipo a schiera porzione di testa, sita nel comune si Trevignano (TV) località Signoressa.

L'unità immobiliare, della superficie commerciale complessiva di mq.216, è composta al piano terra da loggia, ingresso, cucina, locale pranzo-disimpegno, soggiorno, ripostiglio. Al piano primo da camera accessibile dal pianerottolo di interpiano della scala, disimpegno, due camere da letto, bagno, ripostiglio. Al piano interrato da disimpegno da cui si accede a un locale centrale termica, taverna, bagno, locale adibito a cucinino e locale cantina. L'immobile viene venduto tramite asta giudiziaria, ed il prezzo indicato si riferisce al prezzo minimo accettato per la partecipazione all’asta . Aste-Affari fornisce un servizio di assistenza e consulenza tecnica , legale, fiscale e finanziaria su acquisti all’asta e affari immobiliari , al fine di rendere più facile e sicuro l'acquisto di un immobile proveniente dal mercato giudiziario oppure da occasioni presenti sul mercato immobiliare . Analisi di fattibilità , tecnica, burocratica, finanziaria , legale , esame problematiche e vincoli , conteggio costi accessori ed occulti, assistenza in tutte le fasi della procedura fino alla consegna delle chiavi dell’immobile . L'acquisto può essere finanziato tramite mutuo , e , ove possibile , anche in pre-asta tramite procedura di saldo-stralcio . Soluzioni personalizzate per i debitori . Prezzo minimo base asta : euro 131.250,00 Per info aggiuntive , prenotazione visione, consulenza ed assistenza Studio di Consulenza : “aste-affari.com” Info : 042217801118 – 04221780185 www.aste-affari.com --- annuncio pubblicato con GESTIONALEIMMOBILIARE.it.

Dettagli

  • ID Annuncio: 49456220
  • Prezzo: € 131.250
  • Superficie: 216 m²
  • Pubblicazione: 22/09/2025
  • Tipologia:
  • Locali: 3
  • Bagni: 2
  • Contratto:

Informazioni addizionali

  • Arredamento: Arredato
  • Riscaldamento: Climatizzato
  • Cucina: Cucina abitabile
  • Condizioni: Non Specificate

Efficienza Energetica

  • Classe Energetica:
  • I.P.E.: 0.00 kWh/m2anno

Indirizzo Caricamento...