logo mondocasa
  • in Vendita
  • Bagni: 4
  • Mq.: 555

Descrizione

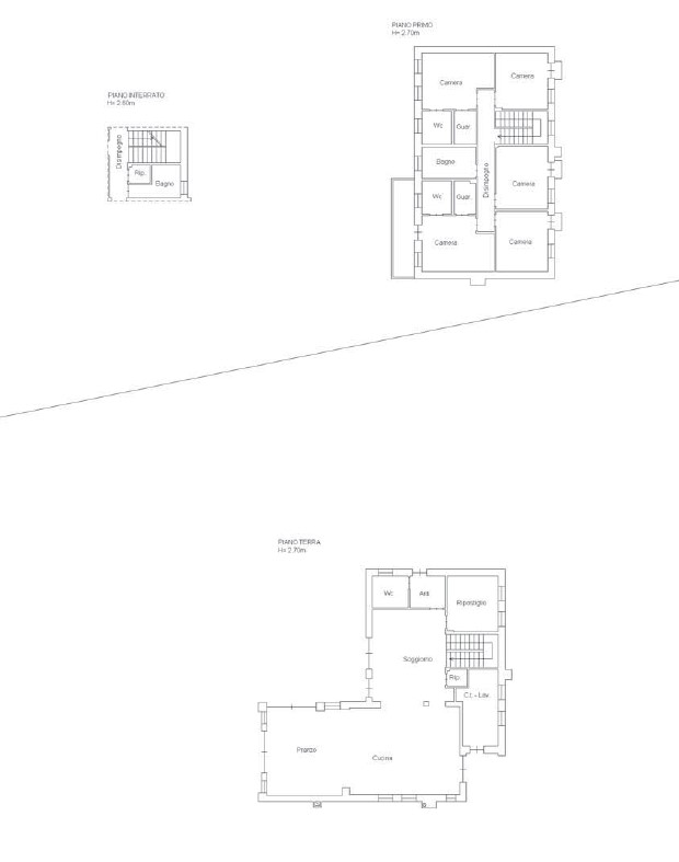
Rif. A.A.87-22 Vendita all'asta - abitazione unifamiliare con scoperto in data 28 ottobre 2025 Descrizione: trattasi di villa unifamiliare disposto su 4 livelli, sito nel comune di Santa Lucia di Piave (TV), località Bolda, in Via Ungheresca n. 29, costituita da abitazione ai piani terra (portico, ingresso, bagno, ripostiglio-studio, cucina-pranzo, due zone soggiorno, vano scale, lavanderia-c.

t., loggia), primo (vano scale, disimpegno, bagno, n.5 camere due delle quali con bagno e guardaroba riservato, una terrazza e n.3 balconi), secondo (vano scale, unico ambiente adibito a cucina-pranzo, vano soggiorno, bagno, camera con bagno e due guardaroba, ripostiglio) e interrato (cantina, disimpegno, vano sottoscala, deposito-sala biliardo, ripostiglio, bagno, magazzino e garage), con annessa area scoperta esclusiva di mq. 1.431 catastali. Pertinenziali: garage al piano interrato; ripostiglio e due depositi al piano interrato; loggetta e portico al piano terra. Appezzamento di terreno agricolo di mq. 6.362. L'immobile viene venduto tramite asta giudiziaria, ed il prezzo indicato si riferisce al prezzo minimo accettato per la partecipazione all’asta . Aste-Affari fornisce un servizio di assistenza e consulenza tecnica , legale, fiscale e finanziaria su acquisti all’asta e affari immobiliari , al fine di rendere più facile e sicuro l'acquisto di un immobile proveniente dal mercato giudiziario oppure da occasioni presenti sul mercato immobiliare . Analisi di fattibilità , tecnica, burocratica, finanziaria , legale , esame problematiche e vincoli , conteggio costi accessori ed occulti, assistenza in tutte le fasi della procedura fino alla consegna delle chiavi dell’immobile . L'acquisto può essere finanziato tramite mutuo , e , ove possibile , anche in pre-asta tramite procedura di saldo-stralcio . Soluzioni personalizzate per i debitori . Prezzo minimo base asta : euro 287.250,00 Per info aggiuntive , prenotazione visione, consulenza ed assistenza Studio di Consulenza : “aste-affari.com” Info : 042217801118 – 04221780185 www.aste-affari.com --- annuncio pubblicato con GESTIONALEIMMOBILIARE.it.

Dettagli

  • ID Annuncio: 49471530
  • Prezzo: € 287.250
  • Superficie: 555 m²
  • Pubblicazione: 22/09/2025
  • Tipologia:
  • Bagni: 4
  • Contratto:

Informazioni addizionali

  • Arredamento: Arredato
  • Riscaldamento: Non Specificato
  • Cucina: Cucina abitabile
  • Condizioni: Buono Stato

Efficienza Energetica

  • Classe Energetica:
  • I.P.E.: 0.00 kWh/m2anno

Indirizzo Caricamento...