logo mondocasa

Attivita' Commerciale

€ 365.206

  • in Vendita
  • Bagni: 4
  • Mq.: 2.268

Descrizione

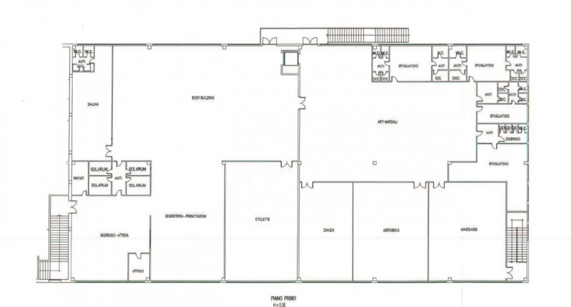
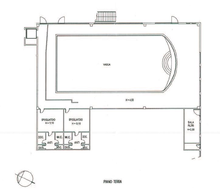
RIF. A.A.302-162 Vendita all'asta - stabile commerciale/palestra in data 13 novembre 2025 Descrizione immobili : immobile per esigenze sportive, sviluppato su 2 livelli fuori terra con scoperto pertinenziale.

Composto al piano terra da porzione comprendente un vano piscina con spogliatoi e annessi servizi, vano tecnico; al piano primo ingresso, attesa, 4 magazzini, ufficio, ripostiglio, vari vani per attività sportive, 1 spogliatoio donne con servizi, 2 spogliatoi uomini con servizi. L'immobile viene venduto tramite asta giudiziaria, ed il prezzo indicato si riferisce al prezzo minimo accettato per la partecipazione all’asta . Aste-Affari fornisce un servizio di assistenza e consulenza tecnica , legale, fiscale e finanziaria su acquisti all’asta e affari immobiliari , al fine di rendere più facile e sicuro l'acquisto di un immobile proveniente dal mercato giudiziario oppure da occasioni presenti sul mercato immobiliare . Analisi di fattibilità , tecnica, burocratica, finanziaria , legale , esame problematiche e vincoli , conteggio costi accessori ed occulti, assistenza in tutte le fasi della procedura fino alla consegna delle chiavi dell’immobile . L'acquisto può essere finanziato tramite mutuo , e , ove possibile , anche in pre-asta tramite procedura di saldo-stralcio . Soluzioni personalizzate per i debitori . Prezzo minimo base asta : euro 365.206 Per info aggiuntive , prenotazione visione, consulenza ed assistenza Studio di Consulenza : “aste-affari.com” Info : 042217801118 – 04221780185 www.aste-affari.com --- annuncio pubblicato con GESTIONALEIMMOBILIARE.it.

Dettagli

  • ID Annuncio: 49491817
  • Prezzo: € 365.206
  • Superficie: 2.268 m²
  • Pubblicazione: 24/09/2025
  • Tipologia:
  • Bagni: 4
  • Contratto:

Informazioni addizionali

  • Arredamento: Arredato
  • Riscaldamento: Climatizzato
  • Cucina: Non Specificata
  • Condizioni: Non Specificate

Efficienza Energetica

  • Classe Energetica: Non Comunicata
  • I.P.E.: 0.00 kWh/m3anno

Indirizzo Caricamento...