logo mondocasa
Friuli Venezia Giulia - Provincia di Pordenone - Prata Di Pordenone

Semi-indipendente

€ 37.500

  • in Vendita
  • Locali: 2
  • Bagni: 2
  • Mq.: 154

Descrizione

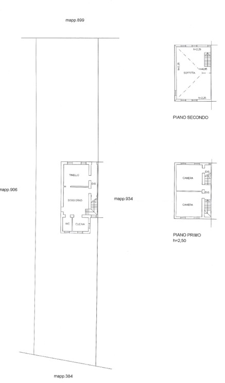
RIF. A.A.276-23 Vendesi all'asta - abitazione bifamiliare su tre piani in data 5 novembre 2025 Descrizione: trattasi di un'abitazione disposta su tre piani fuori terra facente parte di un edificio residenziale bifamiliare. Al piano terra si trova la zona giorno che è costituita da un salotto, soggiorno, cucina e bagno.

Il piano terra è dotato di due ingressi. Al piano primo, a cui si accede con una scala interna, si trova la zona notte composta da due camere da letto, un bagno ed un accesso con scala al piano sottotetto. Superficie commerciale complessiva mq.154. Prezzo minimo: 37.500 euro L'immobile viene venduto tramite asta giudiziaria, ed il prezzo indicato si riferisce al prezzo minimo accettato per la partecipazione all’asta . Aste-Affari fornisce un servizio di assistenza e consulenza tecnica, legale, fiscale e finanziaria su acquisti all’asta e affari immobiliari, al fine di rendere più facile e sicuro l'acquisto di un immobile proveniente dal mercato giudiziario oppure da occasioni presenti sul mercato immobiliare. Analisi di fattibilità, tecnica, burocratica, finanziaria, legale, esame problematiche e vincoli, conteggio costi accessori ed occulti, assistenza in tutte le fasi della procedura fino alla consegna delle chiavi dell’immobile. L'acquisto può essere finanziato tramite mutuo, e, ove possibile anche in pre-asta tramite procedura di saldo-stralcio. Per info aggiuntive, prenotazione visione, consulenza ed assistenza su asta : Studio di Consulenza : "aste-affari.com" Info: 04221780185 – 042217801118 www.aste-affari.com Sei un debitore ? Chiamaci ! Abbiamo soluzioni personalizzate anche per te. --- annuncio pubblicato con GESTIONALEIMMOBILIARE.it.

Dettagli

  • ID Annuncio: 49491870
  • Prezzo: € 37.500
  • Superficie: 154 m²
  • Pubblicazione: 24/09/2025
  • Tipologia:
  • Locali: 2
  • Bagni: 2
  • Contratto:

Informazioni addizionali

  • Arredamento: Non Specificato
  • Riscaldamento: Non Specificato
  • Cucina: Cucina abitabile
  • Condizioni: Da Ristrutturare

Efficienza Energetica

  • Classe Energetica:
  • I.P.E.: 0.00 kWh/m2anno

Indirizzo Caricamento...