logo mondocasa
Emilia Romagna - Provincia di Modena - Maranello

Semi-indipendente

€ 690.200

  • in Vendita
  • Locali: 3
  • Bagni: 3
  • Mq: 246

Descrizione

Nella campagna di Maranello, a meno di 3 minuti dallo stabilimento Ferrari S. p. A. , proponiamo in vendita una villa a schiera di prossima costruzione, con ingresso completamente indipendente e ampio giardino di proprietà esclusiva. it.

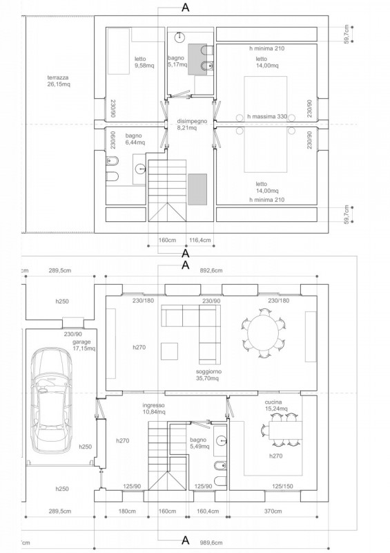
La villa è cosí composta: Accedendo agli spazi interni troviamo, al piano terra, un ingresso, un'ampia zona giorno di oltre 35 mq, cucina abitabile, bagno/lavanderia e garage. Attraverso la scala all'ingresso si accede alla zona notte situata al piano primo e composta da due camere matrimoniali, una camera singola/studio, due bagni e un ampio terrazzo di oltre 25 mq. L’immobile verrà realizzato con le più moderne tecniche costruttive e sarà in classe energetica A4 e in classe sismica A, le massime prestazioni raggiungibili con le tecnologie costruttive odierne. Finiture di pregio e possibilità di personalizzare le finiture!! --- annuncio pubblicato con GESTIONALEIMMOBILIARE.

Dettagli

  • ID Annuncio: 49493004
  • Prezzo: € 690.200
  • Superficie: 246 m²
  • Pubblicazione:
  • Tipologia:
  • Locali: 3
  • Bagni: 3
  • Contratto:

Informazioni aggiuntive

  • Arredamento: Non Specificato
  • Riscaldamento: Climatizzato
  • Cucina: Cucina abitabile
  • Condizioni: Nuovo

Efficienza Energetica

  • Classe Energetica: Non Comunicata
  • I.P.E.: 0.00 kWh/m2anno

Indirizzo Caricamento...