logo mondocasa

Appartamento

€ 51.000

  • in Vendita
  • Locali: 3
  • Bagni: 2
  • Mq.: 80

Descrizione

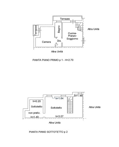
Rif. A.A.245-24 Vendita all'asta - appartamento su due livelli con garage in data 5 novembre 2025 Descrizione: trattasi di un appartamento posto al primo piano e secondo, all’interno del complesso residenziale “Cal Munera”, sito nel comune di Pederobba (TV) frazione Levada.

All'unità immobiliare, della superficie commerciale complessiva di mq.80, si accede tramite un vano scale condominiale; al piano primo è composto da: ingresso - cucina/soggiorno, disimpegno, una camera, due terrazzini, bagno e le scale per accedere al piano secondo/sottotetto dove si trovano due locali ad uso camere, un bagno e un locale sottotetto non praticabile. Completa la proprietà un garage al piano interrato di mq. 15, al quale si accede dal vano scale interno e, tramite una rampa carrabile, direttamente dall’area scoperta condominiale. L'immobile viene venduto tramite asta giudiziaria, ed il prezzo indicato si riferisce al prezzo minimo accettato per la partecipazione all’asta. Aste-Affari fornisce un servizio di assistenza e consulenza tecnica, legale, fiscale e finanziaria su acquisti all’asta e affari immobiliari, al fine di rendere più facile e sicuro l'acquisto di un immobile proveniente dal mercato giudiziario oppure da occasioni presenti sul mercato immobiliare. Analisi di fattibilità, tecnica, burocratica, finanziaria, legale, esame problematiche e vincoli, conteggio costi accessori ed occulti, assistenza in tutte le fasi della procedura fino alla consegna delle chiavi dell’immobile. L'acquisto può essere finanziato tramite mutuo, e, ove possibile anche in pre-asta tramite procedura di saldo-stralcio. Prezzo minimo base asta : da euro 51.000,00 Per info aggiuntive, prenotazione visione, consulenza ed assistenza su asta : Studio di Consulenza : "aste-affari.com" Info: 042217801118 – 04221780185 www.aste-affari.com Sei un debitore ? Chiamaci ! Abbiamo soluzioni personalizzate anche per te. --- annuncio pubblicato con GESTIONALEIMMOBILIARE.it.

Dettagli

  • ID Annuncio: 49497381
  • Prezzo: € 51.000
  • Superficie: 80 m²
  • Pubblicazione: 25/09/2025
  • Tipologia:
  • Locali: 3
  • Bagni: 2
  • Contratto:

Informazioni addizionali

  • Arredamento: Arredato
  • Riscaldamento: Climatizzato
  • Cucina: Non Specificata
  • Condizioni: Buono Stato

Efficienza Energetica

  • Classe Energetica:
  • I.P.E.: 0.00 kWh/m2anno

Indirizzo Caricamento...