logo mondocasa

Villa

€ 649.000

  • in Vendita
  • Locali: 8
  • Bagni: 3
  • Mq.: 356

Descrizione

All' ingresso di Marina di Ragusa, a circa 750 metri dal paese, in contrada Cerasella, Pronto Casa Group propone in vendita una villa di lusso con piscina. La proprietà è composta da due immobili sviluppati su due livelli, ha circa 750 mq di giardino con prato inglese che la circonda da ogni lato e offre una bellissima vista sulla campagna circostante ed il mare.

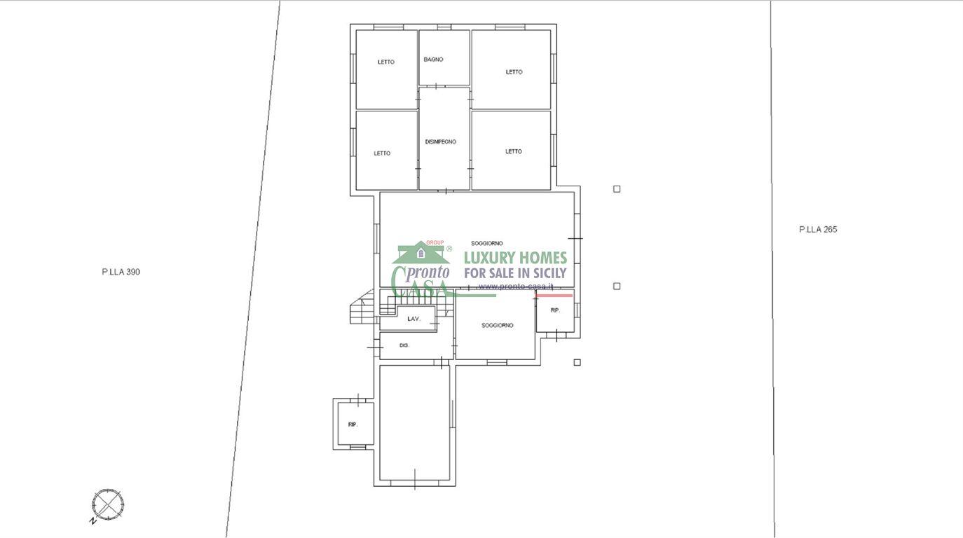
CARATTERISTICHE PRINCIPALI Al piano terra, che occupa una superficie di circa 259 mq, troviamo: - ampio salone con camino e grandi finestre in legno - cucina abitabile - quattro camere da letto matrimoniali - due bagni. Al piano primo è stata realizzata una graziosa mansarda abitabile di circa 97 mq, recentemente rifinita, è composta da: - luminoso salone con cucina a vista - due camere da letto matrimoniali con terrazzini vista mare - bagno. DOTAZIONI E PERTINENZE La casa è climatizzata e presenta ottime finiture. Completano la proprietà un comodo garage di circa 30 mq ed una cantina di 50 mq. Contattaci subito allo 0932 239865 per prenotare una visita dal vivo, oppure visita il nostro sito internet ufficiale con virtual tour disponibile..

Dettagli

  • ID Annuncio: 49509104
  • Prezzo: € 649.000
  • Superficie: 356 m²
  • Pubblicazione: 29/09/2025
  • Tipologia:
  • Locali: 8
  • Bagni: 3
  • Contratto:

Informazioni addizionali

  • Arredamento: Semi-arredato
  • Riscaldamento: Non Specificato
  • Cucina: Cucina abitabile
  • Condizioni: Ottimo Stato

Efficienza Energetica

  • Classe Energetica:
  • I.P.E.: 251,2 KWh/m²a

Indirizzo Caricamento...