logo mondocasa

Negozio

€ 120.000

  • in Vendita
  • Bagno: 1
  • Mq.: 87

Descrizione

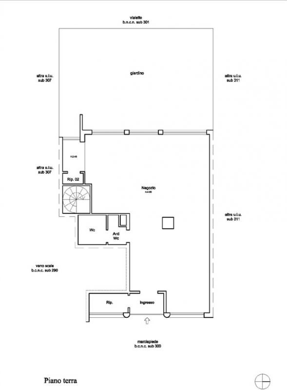
VERONA . All'interno dell'edificio "B" del complesso residenziale denominato "Polifunzionale il Borgo Lotti A-B-C" sito tra Via Monreale e Via Zancle, piena proprietà superficiaria della durata di anni 99 (novantanove) a partire dal 10.09.1991 di negozio al piano terra con annessa corte esclusiva e con magazzino al primo piano scantinato.

Immobile soggetto a E.I. n.ro 22/2025 - LOTTO UNICO - Tribunale di VERONA PREZZO BASE D'ASTA € 160.000,00 OFFERTA MINIMA DI PARTECIPAZIONE € 120.000,00 PROSSIMO ESPERIMENTO: 19/11/2025 PER VISITE ED INFORMAZIONI CHIAMARE IL 0458012557 O 3491676530 La nostra Agenzia presente da anni sul mercato, ricerca le procedure esecutive e concorsuali fornendo una consulenza tecnico legale, bancaria completa per la partecipazione all'asta per l'acquisto dell'immobile, che comprende: •Analisi della procedura esecutiva, valutazione del compendio immobiliare. •Assistenza e Partecipazione all'asta fino alla chiusura dell'operazione e all'assegnazione dell'immobile tramite, decreto di trasferimento o acquisto con rogito notarile. •Ricerca migliore tipologia di finanziamento con gli istituiti di credito convenzionati con il Tribunale di Verona per l'acquisto dell'immobile in Asta. Da molti anni garantiamo un servizio sicuro e completo, volto al soddisfacimento della clientela più esigente che spazia dall’investitore al costruttore, dall’azienda multinazionale al privato. Ci occupiamo con successo di: •Consulenza finanziaria, con ricerca e valutazione di mutui bancari e/o leasing •Gestione delle locazioni di patrimoni immobiliari •Marketing e comunicazione immobiliare I nostri servizi: •Multi-pubblicazione dell'offerta immobiliare sui migliori canali online per la massima visibilità e tempi di conclusione più rapidi •Valutazioni immobiliari •Certificazioni energetiche, oggi obbligatorie per la vendita e la locazione di tutti gli immobili •Verifiche di regolarità urbanistiche e catastali o Registrazioni telematiche contratti di locazione (registrazione, rinnovo, proroga, risoluzione) a 50,00 € + iva o Registrazioni telematiche contratti di locazione con cedolare secca a 30,00 € + iva --- annuncio pubblicato con GESTIONALEIMMOBILIARE.it.

Dettagli

  • ID Annuncio: 49513282
  • Prezzo: € 120.000
  • Superficie: 87 m²
  • Pubblicazione: 30/09/2025
  • Tipologia:
  • Bagni: 1
  • Contratto:

Informazioni addizionali

  • Arredamento: Non Specificato
  • Riscaldamento: Climatizzato
  • Cucina: Non Specificata
  • Condizioni: Ottimo Stato

Efficienza Energetica

  • Classe Energetica:
  • I.P.E.: 0.00 kWh/m3anno

Indirizzo Caricamento...