logo mondocasa

Appartamento

Ris.

  • in Vendita
  • Locali: 2
  • Bagno: 1
  • Mq.: 250

Descrizione

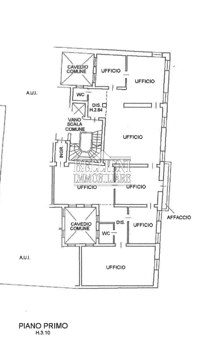
CORSO FOGAZZARO: in pieno Centro Storico, comodissimo al Park Fogazzaro, proponiamo in vendita un ufficio in un elegante palazzo storico servito da ascensore con possibilità di cambio destinazione d'uso in due bicamere. L'ufficio si compone di: ingresso principale con un' ampia zona reception, cinque uffici, una sala riunioni e due servizi.

Possibilità di dividere l'ufficio in due unità abitative con due ingressi indipendenti con soggiorno, cucina, due camere e un bagno. L'immobile si trova in una posizione strategica grazie alla vicinanza ai parcheggi ed ha un bel affaccio sulla via principale. Possibilità di acquistare due garage nel palazzo con prezzo a parte. C.E. D Rif U57 Bellieni Immobiliare S.R.L Unipersonale, Piazza G. Matteotti n°20, Vicenza. 0444525262 richieste@bellieni.com --- annuncio pubblicato con GESTIONALEIMMOBILIARE.it.

Dettagli

  • ID Annuncio: 49518232
  • Prezzo: Ris.
  • Superficie: 250 m²
  • Pubblicazione: 02/10/2025
  • Tipologia:
  • Locali: 2
  • Bagni: 1
  • Contratto:

Informazioni addizionali

  • Arredamento: Non Specificato
  • Riscaldamento: Climatizzato
  • Cucina: Cucina abitabile
  • Condizioni: Buono Stato

Efficienza Energetica

  • Classe Energetica:
  • I.P.E.: 0.00 kWh/m2anno

Indirizzo Caricamento...