logo mondocasa

Indipendente

€ 170.626

  • in Vendita
  • Locali: 3
  • Bagni: 3
  • Mq.: 345

Descrizione

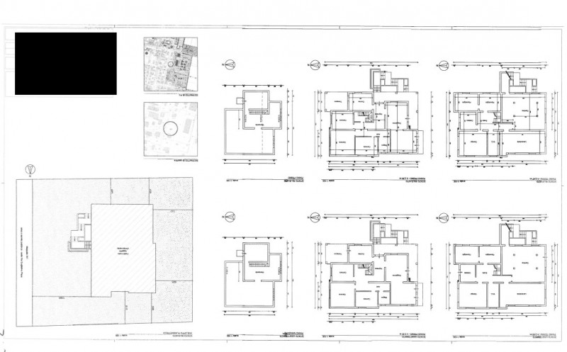
Rif. A.A.4587-231 Vendita all'asta - abitazione in villini su 3 piani in data 18 novembre 2025 Descrizione Immobile: abitazione in villino realizzata a metà degli anni settanta che si sviluppa su due piani fuori terra. Il piano terra occupa tutta la pianta del fabbricato e si sviluppa attorno alla scala centrale interna.

Trovano collocazione oltre il garage, una serie di spazi a servizio dell’abitazione principale che si sviluppa al piano primo e, precisamente: un’ampia sala posta a posta a sud est, utilizzata come zona a giorno; un ampio magazzino posto a sud ovest che confina con un bagno con affaccio sul giardino ad est. A confine con il bagno trova collocazione un garage di contenute dimensione. A ridosso del garage sono collocati tre locali ad uso magazzino. Dal piano terra si sale al piano primo sia attraverso una scala di servizio interna che dalla scala principale di accesso, esterna… Dalla terrazza si accede al piano attraverso un andito d’ingresso che conduce alla zona giorno costituita dalla cucina e da un’ampia zona a giorno a destinazione pranzo e salotto. Sempre dall’ingresso, si accede alla zona notte costituita da una camera matrimoniale e due camere singole oltre al bagno. Tutta la zona notte è servita da un corridoio che distribuisce i vari accessi alle camere… L’unità immobiliare è dotata di area scoperta esclusiva di circa 760 m2, disposta sui quattro lati, destinata prevalentemente a verde, fatta eccezione per il marciapiede a perimetro del fabbricato e per l’area asfaltata antistante il garage. Il lotto è delimitato e recintato su tutti i lati e comprende cancello pedonale di ingresso all’abitazione. L'immobile viene venduto tramite asta giudiziaria, ed il prezzo indicato si riferisce al prezzo minimo accettato per la partecipazione all’asta . Aste-Affari fornisce un servizio di assistenza e consulenza tecnica , legale, fiscale e finanziaria su acquisti all’asta e affari immobiliari , al fine di rendere più facile e sicuro l'acquisto di un immobile proveniente dal mercato giudiziario oppure da occasioni presenti sul mercato immobiliare . Analisi di fattibilità , tecnica, burocratica, finanziaria , legale , esame problematiche e vincoli , conteggio costi accessori ed occulti, assistenza in tutte le fasi della procedura fino alla consegna delle chiavi dell’immobile . L'acquisto può essere finanziato tramite mutuo , e , ove possi....

Dettagli

  • ID Annuncio: 49528352
  • Prezzo: € 170.626
  • Superficie: 345 m²
  • Pubblicazione: 03/10/2025
  • Tipologia:
  • Locali: 3
  • Bagni: 3
  • Contratto:

Informazioni addizionali

  • Arredamento: Non Specificato
  • Riscaldamento: Non Specificato
  • Cucina: Cucina abitabile
  • Condizioni: Non Specificate

Efficienza Energetica

  • Classe Energetica:
  • I.P.E.: 0.00 kWh/m2anno

Indirizzo Caricamento...