logo mondocasa

Attivita' Commerciale

€ 158.700

  • in Vendita
  • Bagni: 2
  • Mq: 672

Descrizione

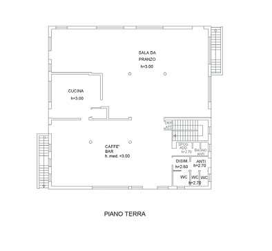
Rif. A. A. 281-211 Vendita all'asta - attività commerciale al piano terra in data 18 novembre 2025 Descrizione: trattasi di un compendio immobiliare sito in Comune di Pederobba (TV), località Onigo, in Via Feltrina n. c. 5. 672. aste-affari. it.

4, e precisamente edificio commerciale con locali e servizi accessori adibito a bar-ristorante (zona caffè/bar, cucina, vano montacarichi, deposito, spogliatoi, antibagno, w. , servizi pubblici), a un piano fuori terra, con piano interrato in corso di definizione; area scoperta di pertinenza di circa mq. 050 adibita ad area di manovra e sosta veicoli. Superficie commerciale complessiva mq. L'immobile viene venduto tramite asta giudiziaria, ed il prezzo indicato si riferisce al prezzo minimo accettato per la partecipazione all’asta Aste-Affari fornisce un servizio di assistenza e consulenza tecnica , legale, fiscale e finanziaria su acquisti all’asta e affari immobiliari , al fine di rendere più facile e sicuro l'acquisto di un immobile proveniente dal mercato giudiziario oppure da occasioni presenti sul mercato immobiliare. Analisi di fattibilità , tecnica, burocratica, finanziaria , legale , esame problematiche e vincoli , conteggio costi accessori ed occulti, assistenza in tutte le fasi della procedura fino alla consegna delle chiavi dell’immobile. L'acquisto può essere finanziato tramite mutuo , e , ove possibile , anche in pre-asta tramite procedura di saldo-stralcio. Soluzioni personalizzate per i debitori. Prezzo minimo base asta : euro 158. 700,00 Per info aggiuntive , prenotazione visione, consulenza ed assistenza Studio di Consulenza : “aste-affari. com” Info : 042217801118 – 04221780185 www. com --- annuncio pubblicato con GESTIONALEIMMOBILIARE.

Dettagli

  • ID Annuncio: 49533988
  • Prezzo: € 158.700
  • Superficie: 672 m²
  • Pubblicazione: 06/10/2025
  • Tipologia:
  • Bagni: 2
  • Contratto:

Informazioni aggiuntive

  • Arredamento: Arredato
  • Riscaldamento: Climatizzato
  • Cucina: Cucina abitabile
  • Condizioni: Buono Stato

Efficienza Energetica

  • Classe Energetica: Classe Energetica
  • I.P.E.: 0.00 kWh/m3anno

Indirizzo Caricamento...