logo mondocasa

Appartamento

€ 210.000

  • in Vendita
  • Locali: 3
  • Bagno: 1
  • Mq.: 66

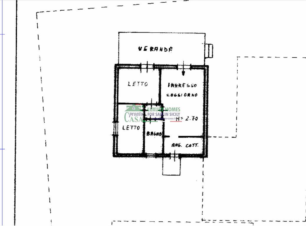
Descrizione

Pronto Casa Group propone in vendita un immobile in ottimo stato, al piano terra di una piccola palazzina della fine degli anni '90 a Marina di Ragusa. L'appartamento, con una superficie di circa 66 mq, ha un accesso indipendente dal vano condominiale ed è già pronto per essere abitato.

CARATTERISTICHE PRINCIPALI - Soggiorno - Cucina semi abitabile - Camera matrimoniale - Camera doppia - Servizio con box doccia. SPAZI ESTERNI - Spaziosa veranda di circa 15 mq per godere di piacevoli momenti all'aria aperta - Piccolo spazio esterno a servizio della cucina e collegato al posto auto. DOTAZIONI E PERTINENZE - Posto auto scoperto di proprietà all'interno del cortile condominiale - Ambienti climatizzati - Rifacimento della pavimentazione interna fatto nel 2018 - Cisterna dell'acqua autonoma rispetto al condominio. POSIZIONE L'immobile si trova nella parte alta di Marina di Ragusa, in una zona servita e lontana dal caos del centro del paese. Rappresenta la soluzione ideale per chi cerca tranquillità, non rinunciando alla comodità del mare che dista circa 650 mt. Per maggiori informazioni sull’immobile, contatta la filiale Pronto Casa Group – Agenzia 7 Marina di Ragusa al numero 0932 239865. Visita il nostro sito web www.pronto-casa.it per scoprire tutti gli annunci disponibili in zona..

Dettagli

  • ID Annuncio: 49534946
  • Prezzo: € 210.000
  • Superficie: 66 m²
  • Pubblicazione: 07/10/2025
  • Tipologia:
  • Locali: 3
  • Bagni: 1
  • Contratto:

Informazioni addizionali

  • Arredamento: Arredato
  • Riscaldamento: Non Specificato
  • Cucina: Cucina semi-abitabile
  • Condizioni: Ottimo Stato

Efficienza Energetica

  • Classe Energetica:
  • I.P.E.: 284,66 KWh/m²a

Indirizzo Caricamento...