logo mondocasa
Emilia Romagna - Provincia di Forli Cesena - Cesena

Capannone

Ris.

  • in Vendita
  • Bagni: 4
  • Mq: 1.280

Descrizione

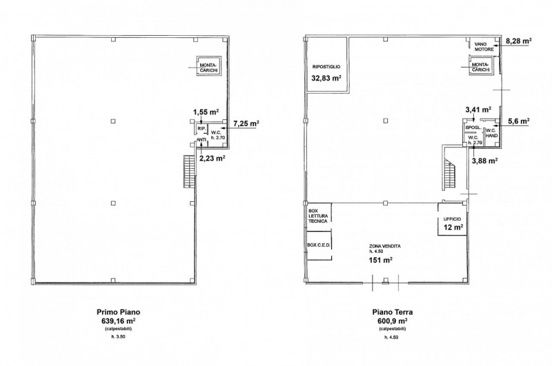
A Cesena zona Sant'Egidio vendiamo capannone di totali circa 1. 280 mq su 2 piani di cui uffici su entrambe i piani per totali 200 mq circa e al piano terra area di vendita al dettaglio di 150 mq e corte privata di 500 mq. it.

L'immobile si presenta in ottime condizioni con riscaldamento in tutto il piano terra e raffrescamento in tutti gli uffici, molto luminoso, con ampio montacarichi. per info Roberto 3486440700 SONO SPECIALIZZATO IN IMMOBILI COMMERCIALI --- capannoni, uffici, negozi ma anche attività attive o inattive --- Chiamatemi direttamente per sottoporvi panoramica di immobili idonei. Oppure scrivetemi a info@passeriniimmobiliare. com le seguenti informazioni: - attività o uso che si intende svolgere - tipologia di immobile - mq necessari di interno specificando quanti uffici e altri vani - mq di esterno se necessari (corte privata o fronte strada di passaggio. ) - zona ideale - budget massimo disponibile Vi contatterò quanto prima con una panoramica di proposte Grazie Ape D --- annuncio pubblicato con GESTIONALEIMMOBILIARE.

Dettagli

  • ID Annuncio: 49538897
  • Prezzo: Ris.
  • Superficie: 1.280 m²
  • Pubblicazione: 07/10/2025
  • Tipologia:
  • Bagni: 4
  • Contratto:

Informazioni aggiuntive

  • Arredamento: Non Specificato
  • Riscaldamento: Climatizzato
  • Cucina: Non Specificata
  • Condizioni: Ottimo Stato

Efficienza Energetica

  • Classe Energetica: Classe Energetica
  • I.P.E.: 0.00 kWh/m3anno

Indirizzo Caricamento...