logo mondocasa
Emilia Romagna - Provincia di Forli Cesena - Cesena

Capannone

Ris.

  • in Vendita
  • Bagni: 4
  • Mq: 640

Descrizione

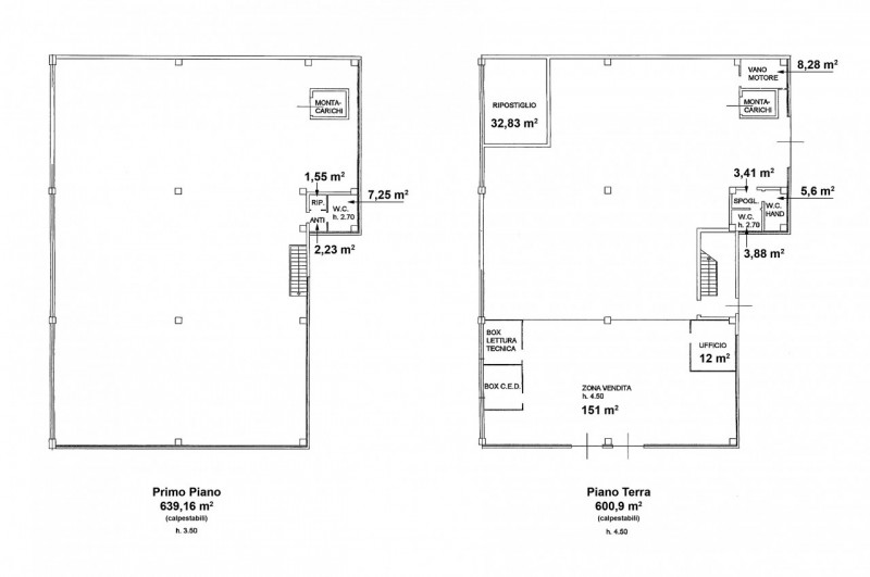
A Cesena zona Sant'Egidio vendiamo capannone di 640 mq come frazionamento di un capannone di 2 piani ciascuno di 640 mq e corte esterna di 500 mq. Oppure scrivetemi a info@passeriniimmobiliare. it.

L'immobile si presenta in ottime condizioni, molto luminoso e con ampio montacarichi: - al piano terra di 640 mq, uffici di 100 mq, ampie vetrine, riscaldamento nella parte capannone e zona vendita al dettaglio di 150 mq - al piano primo di 640 mq, uffici di 100 mq e ampie finestre per info Roberto 3486440700 SONO SPECIALIZZATO IN IMMOBILI COMMERCIALI --- capannoni, uffici, negozi ma anche attività attive o inattive --- Chiamatemi direttamente per sottoporvi panoramica di immobili idonei. com le seguenti informazioni: - attività o uso che si intende svolgere - tipologia di immobile - mq necessari di interno specificando quanti uffici e altri vani - mq di esterno se necessari (corte privata o fronte strada di passaggio. ) - zona ideale - budget massimo disponibile Vi contatterò quanto prima con una panoramica di proposte Grazie Ape E --- annuncio pubblicato con GESTIONALEIMMOBILIARE.

Dettagli

  • ID Annuncio: 49538898
  • Prezzo: Ris.
  • Superficie: 640 m²
  • Pubblicazione: 07/10/2025
  • Tipologia:
  • Bagni: 4
  • Contratto:

Informazioni aggiuntive

  • Arredamento: Non Specificato
  • Riscaldamento: Climatizzato
  • Cucina: Non Specificata
  • Condizioni: Ottimo Stato

Efficienza Energetica

  • Classe Energetica: Classe Energetica
  • I.P.E.: 0.00 kWh/m3anno

Indirizzo Caricamento...