logo mondocasa

Locale Comm.le

€ 1.200

  • in Affitto
  • Locali: 3
  • Bagni: 3
  • Mq.: 168

Descrizione

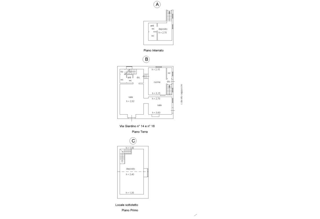
La Pronto Casa Group propone in locazione nella suggestiva Ragusa Ibla, a pochi passi dai giardini Iblei, immobile commerciale di mq 168 circa. Il cespite si presta ad attività di ristorazione ed è sito in una zona ad alta densità turistica. CARATTERISTICHE PRINCIPALI: L'immobile si sviluppa interamente al piano terra ed è composto da: - tre sale - tre servizi - cucina abitabile.

Completa la struttura il cortile interno di mq 60 circa, di esclusiva pertinenza, all'interno del quale è possibile organizzare lo spazio riservandolo a vari tavoli. Per ulteriori informazioni contattare lo 0932257603 o visitare il nostro sito..

Dettagli

  • ID Annuncio: 49539990
  • Prezzo: € 1.200
  • Superficie: 168 m²
  • Pubblicazione: 17/10/2025
  • Tipologia:
  • Locali: 3
  • Bagni: 3
  • Contratto:

Informazioni addizionali

  • Arredamento: Vuoto
  • Riscaldamento: Non Specificato
  • Cucina: Cucina abitabile
  • Condizioni: Ottimo Stato

Efficienza Energetica

  • Classe Energetica:
  • I.P.E.: 7,63 KWh/m²a

Indirizzo Caricamento...