logo mondocasa
  • in Vendita
  • Bagno: 1
  • Mq.: 129

Descrizione

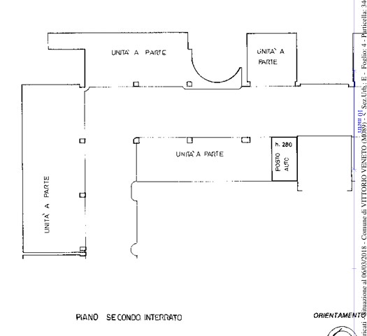
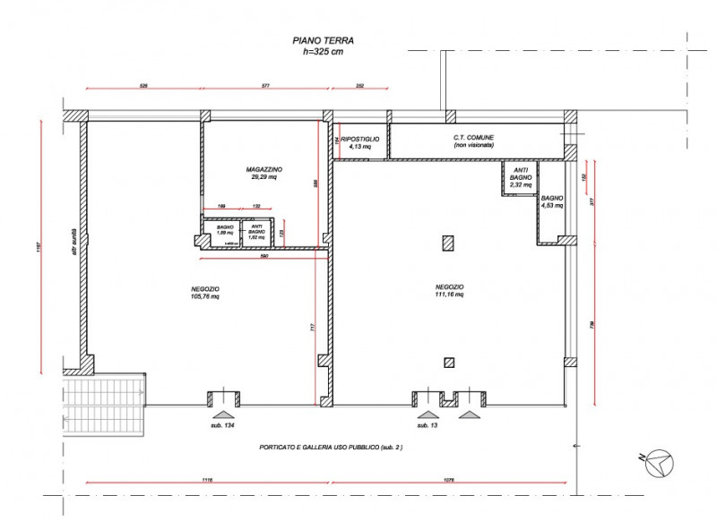
Rif. A.A.86-183 Vendita all'asta - negozio al piano terra in data 19 novembre 2025 Descrizione: trattasi di un'unità immobiliare ad uso commerciale sita nel Comune di Vittorio Veneto (TV), in Galleria Nazioni Unite n. 19, all’incrocio tra Via Div. N.

Nanetti e Via G. Carducci. Al piano terra di un più ampio complesso denominato Condominio Agribella, l’unità sviluppa una superficie di circa mq. 129 catastali che comprendono l’area di vendita, un magazzino, il bagno e l’antibagno. Libera. Sono altresì inclusi nel lotto n. 2 posti auto, siti al secondo piano sottostrada e n. 1 magazzino al piano primo sottostrada. Prezzo minimo base asta : da euro 65.195,00 L'immobile viene venduto tramite asta giudiziaria, ed il prezzo indicato si riferisce al prezzo minimo accettato per la partecipazione all’asta. Aste-Affari fornisce un servizio di assistenza e consulenza tecnica, legale, fiscale e finanziaria su acquisti all’asta e affari immobiliari, al fine di rendere più facile e sicuro l'acquisto di un immobile proveniente dal mercato giudiziario oppure da occasioni presenti sul mercato immobiliare. Analisi di fattibilità, tecnica, burocratica, finanziaria, legale, esame problematiche e vincoli, conteggio costi accessori ed occulti, assistenza in tutte le fasi della procedura fino alla consegna delle chiavi dell’immobile. L'acquisto può essere finanziato tramite mutuo, e, ove possibile anche in pre-asta tramite procedura di saldo-stralcio. Per info aggiuntive, prenotazione visione, consulenza ed assistenza su asta : Studio di Consulenza : "aste-affari.com" info: 04221781118 04221780185 www.aste-affari.com Sei un debitore ? Chiamaci ! Abbiamo soluzioni personalizzate anche per te. --- annuncio pubblicato con GESTIONALEIMMOBILIARE.it.

Dettagli

  • ID Annuncio: 49544146
  • Prezzo: € 65.195
  • Superficie: 129 m²
  • Pubblicazione: 08/10/2025
  • Tipologia:
  • Bagni: 1
  • Contratto:

Informazioni addizionali

  • Arredamento: Non Specificato
  • Riscaldamento: Non Specificato
  • Cucina: Non Specificata
  • Condizioni: Non Specificate

Efficienza Energetica

  • Classe Energetica: NON SOGG. CERT.
  • I.P.E.: 0.00 kWh/m3anno

Indirizzo Caricamento...