logo mondocasa
  • in Affitto
  • Mq.: 130

Descrizione

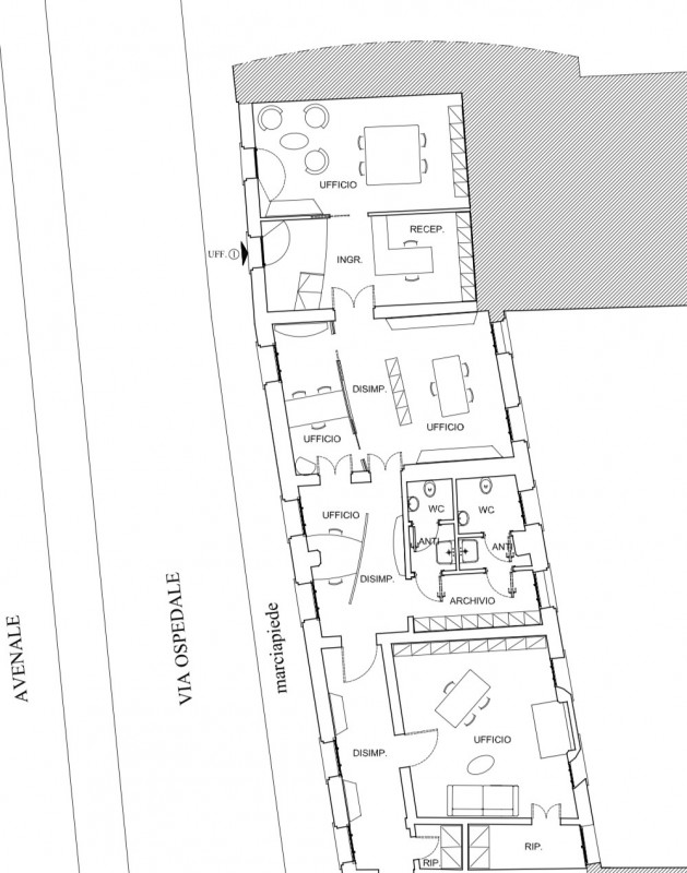
Castelfranco V.to: in palazzo settecentesco, all'inizio di borgo Treviso e precisamente con ingresso da via Ospedale, proponiamo in locazione un locale ad uso direzionale di 130 mq, posto al piano terra. Dotato di ingresso indipendente, si presenta in ottime condizioni, con pavimentazione originali, soffitto in travi a vista, dotato di impianto di riscaldamento autonomo e condizionamento di nuova installazione.

La disposizione interna prevede quattro locali ad uso ufficio, un ripostiglio e doppi servizi. Non sono previste spese condominiali. La planimetrie pubblicata prevede una ipotesi di layout interno. Locazione esente Iva. Consegna in 2/3 mesi. Per informazioni potete contattarci al 3355302122 o 0423420365 --- annuncio pubblicato con GESTIONALEIMMOBILIARE.it.

Dettagli

  • ID Annuncio: 49544317
  • Prezzo: € 1.200
  • Superficie: 130 m²
  • Pubblicazione: 08/10/2025
  • Tipologia:
  • Contratto:

Informazioni addizionali

  • Arredamento: Non Specificato
  • Riscaldamento: Climatizzato
  • Cucina: Non Specificata
  • Condizioni: Buono Stato

Efficienza Energetica

  • Classe Energetica:
  • I.P.E.: 0.00 kWh/m3anno

Indirizzo Caricamento...