logo mondocasa
Friuli Venezia Giulia - Provincia di Pordenone - Pordenone

Appartamento

€ 114.525

  • in Vendita
  • Locali: 3
  • Bagni: 2
  • Mq.: 230

Descrizione

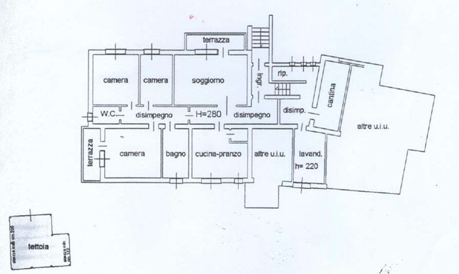
Rif. A.A.58-24 Vendita all'asta - appartamento al piano terra rialzato in data 13 novembre 2025 Descrizione: trattasi di un appartamento ubicato al piano terra rialzato di una palazzina di 3 unità sita nel comune di Pordenone (PN). L'unità immobiliare, della superficie commerciale complessiva di mq.

230, è composta da ingresso, ripostiglio, cantina, lavanderia, disimpegno, soggiorno, cucina, bagno, tre camere, w.c. e due terrazze. Annessi due box autorimessa e ampia pertinenza scoperta ad uso esclusivo facente parte di un fabbricato composto tre unità abitative. L'immobile viene venduto tramite asta giudiziaria, ed il prezzo indicato si riferisce al prezzo minimo accettato per la partecipazione all’asta. Aste-Affari fornisce un servizio di assistenza e consulenza tecnica, legale, fiscale e finanziaria su acquisti all’asta e affari immobiliari, al fine di rendere più facile e sicuro l'acquisto di un immobile proveniente dal mercato giudiziario oppure da occasioni presenti sul mercato immobiliare. Analisi di fattibilità, tecnica, burocratica, finanziaria, legale, esame problematiche e vincoli, conteggio costi accessori ed occulti, assistenza in tutte le fasi della procedura fino alla consegna delle chiavi dell’immobile. L'acquisto può essere finanziato tramite mutuo, e, ove possibile anche in pre-asta tramite procedura di saldo-stralcio. Prezzo minimo base asta : da euro 114.525,00 Per info aggiuntive, prenotazione visione, consulenza ed assistenza su asta : Studio di Consulenza : "aste-affari.com" info: 04221781118 04221780185 www.aste-affari.com Sei un debitore ? Chiamaci ! Abbiamo soluzioni personalizzate anche per te. --- annuncio pubblicato con GESTIONALEIMMOBILIARE.it.

Dettagli

  • ID Annuncio: 49544330
  • Prezzo: € 114.525
  • Superficie: 230 m²
  • Pubblicazione: 10/10/2025
  • Tipologia:
  • Locali: 3
  • Bagni: 2
  • Contratto:

Informazioni addizionali

  • Arredamento: Arredato
  • Riscaldamento: Non Specificato
  • Cucina: Cucina abitabile
  • Condizioni: Non Specificate

Efficienza Energetica

  • Classe Energetica:
  • I.P.E.: 0.00 kWh/m2anno

Indirizzo Caricamento...