logo mondocasa

Villetta A Schiera

€ 75.000

  • in Vendita
  • Locali: 3
  • Bagno: 1
  • Mq.: 140

Descrizione

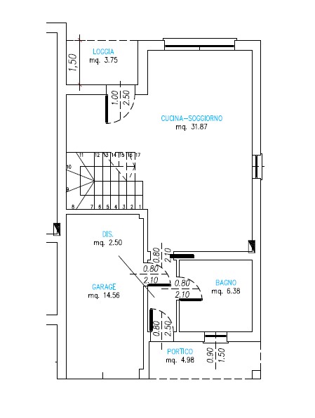
A Solesino, località Arteselle, proponiamo in vendita spaziosa casa a schiera di testa al grezzo, che offre un'opportunità unica per chi cerca una casa da personalizzare secondo i propri gusti. L'abitazione è composta da un doppio ingresso, uno pedonale sul retro dell'immobile e uno carraio sul fronte dello stesso.

La casa è caratterizzata da: loggia d'entrata che conduce alla zona giorno open space con cucina a vista, disimpegno, bagno e garage al piano terra; al primo piano troviamo una camera da letto matrimoniale, due camere singole, ripostiglio, bagno e due affacci esterni, su una loggia e su una terrazza. Completa la proprietà un comodo giardino di pertinenza sui tre lati. Il contesto circostante è caratterizzato dalla tranquillità del quartiere residenziale, ideale per famiglie o coppie in cerca di pace senza rinunciare alla comodità della posizione strategica, che permette facili collegamenti con le principali arterie stradali della zona. IL PREZZO S'INTENDE PER LA SINGOLA ABITAZIONE AL GREZZO. Per informazioni contattare l'Agenzia OBIETTIVO CASA di Este via Padana Inferiore n. 2 al numero 0429.51983 oppure a info@obiettivo-casa.info --- annuncio pubblicato con GESTIONALEIMMOBILIARE.it.

Dettagli

  • ID Annuncio: 49549294
  • Prezzo: € 75.000
  • Superficie: 140 m²
  • Pubblicazione: 09/10/2025
  • Tipologia:
  • Locali: 3
  • Bagni: 1
  • Contratto:

Informazioni addizionali

  • Arredamento: Non Specificato
  • Riscaldamento: Non Specificato
  • Cucina: Non Specificata
  • Condizioni: Nuovo

Efficienza Energetica

  • Classe Energetica: NON SOGG. CERT.
  • I.P.E.: 0.00 kWh/m2anno

Indirizzo Caricamento...