logo mondocasa

Ufficio

€ 110.000

  • in Vendita
  • Bagno: 1
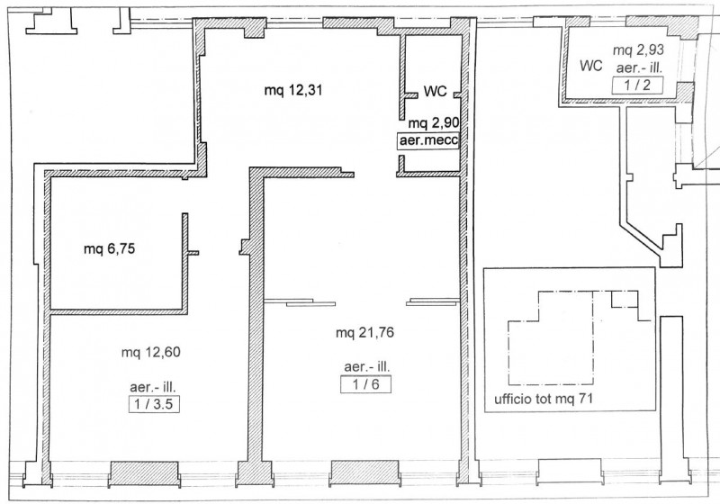
  • Mq: 70

Descrizione

Comoda zona lavanderia di proprietà. Alleghiamo bozza di progetto. L'immobile è provvisto di riscaldamento centralizzato con termosifoni e contacalorie, serramenti in legno doppio vetro. Rif. Non è richiesta alcuna esclusiva. it.

(Per INFO Mara 3481536890) Nella meravigliosa cornice storica del centro di Oderzo proponiamo in vendita luminoso e pratico ufficio di 70 mq, ad oggi distribuito negli spazi in modo ottimale e funzionale per accogliere chiunque necessita di una posizione privilegiata per la propria attività. Per chi invece è alla ricerca di un immobile residenziale in una zona centralissima, c'è la possibilità di operare un cambio di destinazione d'uso e ricavare un mini appartamento, così distribuito: ampio ingresso, zona giorno luminosa con angolo cottura, camera matrimoniale con cabina armadio e bagno con doccia. Ottimo anche per investimento sia ad uso ufficio che con eventuale cambio d'uso. U7289 NB Siamo alla ricerca di immobili per dei nostri clienti referenziati per i quali è già stato deliberato il mutuo. Rimaniamo a disposizione per un sopralluogo, contattateci senza impegno. I dati e le informazioni contenute nel presente annuncio hanno valore puramente indicativo e non costituiscono elemento, vincolo o presupposto contrattuale. Tutte le misure eventualmente riportate devono considerarsi indicative. A tutela della privacy del proprietario, l'indirizzo indicato potrebbe non corrispondere alla reale ubicazione dell'immobile, ma trovarsi nelle immediate vicinanze e godere sostanzialmente degli stessi servizi. --- annuncio pubblicato con GESTIONALEIMMOBILIARE.

Dettagli

  • ID Annuncio: 49565416
  • Prezzo: € 110.000
  • Superficie: 70 m²
  • Pubblicazione: 02/12/2025
  • Tipologia:
  • Bagni: 1
  • Contratto:

Informazioni aggiuntive

  • Arredamento: Non Specificato
  • Riscaldamento: Non Specificato
  • Cucina: Non Specificata
  • Condizioni: Buono Stato

Efficienza Energetica

  • Classe Energetica: Classe Energetica
  • I.P.E.: 203.45 kWh/m3anno

Indirizzo Caricamento...