logo mondocasa

Terreno

€ 14.000

  • in Vendita
  • Mq: 1.370

Descrizione

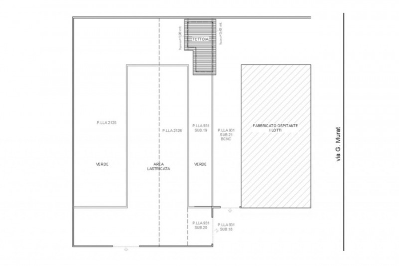
Quest’immobile viene venduto tramite asta online. Quote di 1/2 di aree urbane e terreni siti in Lamezia Terme (CZ), in via G. Murat nell’incrocio con via S. Foderaro, in una zona a prevalente destinazione residenziale e con attività commerciali. Lgs.

L’accesso ai terreni avviene tramite due cancelli carrabili in ferro entrambi su Via S. Foderaro. La particella 2125 è parzialmente gravata da Vincolo Paesaggistico ai sensi dell’art. 142, comma 1, lettera c del D. 42/2004 sul rispetto dei corsi d’acqua. Presenza di una tettoia in ferro abusiva sulla particella 19. L’area urbana, particella 20, risulta pavimentata. Per maggiori informazioni vedasi documentazione allegata. Superficie catastale terreno particella 2125: 734 mq Superficie catastale terreno particella 2126: 496 mq Superficie catastale area urbana sub. 19: 109 mq Superficie catastale area urbana sub. 20: 31 mq Superficie totale catastale: 1370 mq Proprietà di 1/2 di : (CT): Foglio 32 - Particella 2125 (CT): Foglio 32 - Particella 2126 (CF): Foglio 32 -Particella 931 - Subalterno 19 - cat. F/1 (CF): Foglio 32 -Particella 931- Subalterno 20 - cat. F/1 Offerta minima: 14000 EURO. Quimmo. it: iniziativa tech del Gruppo illimity specializzata nell’intermediazione digitale di beni immobili provenienti da tribunali, nuovi sviluppi immobiliari, financial institutions e libero mercato. Da oltre 10 anni Quimmo. it è il portale specializzato nella compravendita di immobili tramite asta giudiziaria. Il portale è infatti iscritto nel Registro Gestori della vendita telematica e nell’elenco dei siti web autorizzati allo svolgimento della pubblicità legale. Con Quimmo puoi scegliere tra migliaia di immobili di ogni tipo e partecipare alle aste online per acquistare la soluzione più adatta alle tue esigenze. Affidati all’esperienza decennale dei nostri esperti e richiedi l’assistenza gratuita per la presentazione e compilazione dell’offerta. Contattaci subito. --- annuncio pubblicato con GESTIONALEIMMOBILIARE. it.

Dettagli

  • ID Annuncio: 49574412
  • Prezzo: € 14.000
  • Superficie: 1.370 m²
  • Pubblicazione: 05/12/2025
  • Tipologia:
  • Contratto:

Informazioni aggiuntive

  • Arredamento: Non Specificato
  • Riscaldamento: Non Specificato
  • Cucina: Non Specificata
  • Condizioni: Non Specificate

Efficienza Energetica

  • Classe Energetica: Non Comunicata
  • I.P.E.: 0.00 kWh/m2anno

Indirizzo Caricamento...