logo mondocasa

Indipendente

€ 371.250

  • in Vendita
  • Locali: 4
  • Mq.: 550

Descrizione

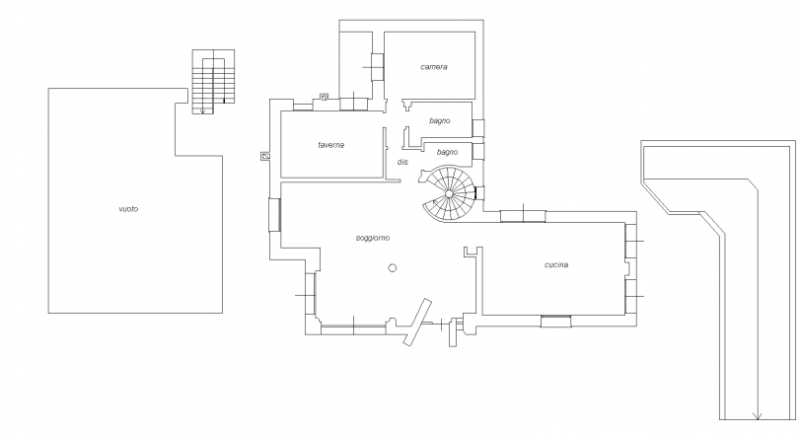
Rif. A.A.563-19 Vendita all'asta - abitazione su 3 livelli in data 19 novembre 2025 Descrizione: trattasi di un'immobile ad uso abitazione in fabbricato a due piani fuori terra oltre al seminterrato, con area scoperta pertinenziale, sito nel comune di Spresiano (TV).

L’abitazione, della superficie commerciale complessiva di mq.550, è composta: al piano terra da soggiorno, cucina, bagno, wc, camera, taverna; al piano primo da tre camere, due bagni, guardaroba, disimpegno, oltre a due terrazzi; al piano seminterrato da ampio magazzino con cantina, wc, due ripostigli, centrale termica, garage, altro magazzino con wc; sul lato ovest ampio plateatico pavimentato e scoperto. Completa la proprietà un terreno agricolo di contorno di complessivi mq 6.212 catastali L'immobile viene venduto tramite asta giudiziaria, ed il prezzo indicato si riferisce al prezzo minimo accettato per la partecipazione all’asta Aste-Affari fornisce un servizio di assistenza e consulenza tecnica , legale, fiscale e finanziaria su acquisti all’asta e affari immobiliari , al fine di rendere più facile e sicuro l'acquisto di un immobile proveniente dal mercato giudiziario oppure da occasioni presenti sul mercato immobiliare . Analisi di fattibilità , tecnica, burocratica, finanziaria , legale , esame problematiche e vincoli , conteggio costi accessori ed occulti, assistenza in tutte le fasi della procedura fino alla consegna delle chiavi dell’immobile . L'acquisto può essere finanziato tramite mutuo , e , ove possibile , anche in pre-asta tramite procedura di saldo-stralcio . Soluzioni personalizzate per i debitori . Prezzo minimo base asta : euro 371.250,00 Per info aggiuntive , prenotazione visione, consulenza ed assistenza Studio di Consulenza : “aste-affari.com” Info : 042217801118 – 04221780185 www.aste-affari.com --- annuncio pubblicato con GESTIONALEIMMOBILIARE.it.

Dettagli

  • ID Annuncio: 49578775
  • Prezzo: € 371.250
  • Superficie: 550 m²
  • Pubblicazione: 17/10/2025
  • Tipologia:
  • Locali: 4
  • Contratto:

Informazioni addizionali

  • Arredamento: Arredato
  • Riscaldamento: Climatizzato
  • Cucina: Cucina abitabile
  • Condizioni: Ottimo Stato

Efficienza Energetica

  • Classe Energetica:
  • I.P.E.: 0.00 kWh/m2anno

Indirizzo Caricamento...