logo mondocasa

Laboratorio

€ 1.500

  • in Affitto
  • Mq.: 554

Descrizione

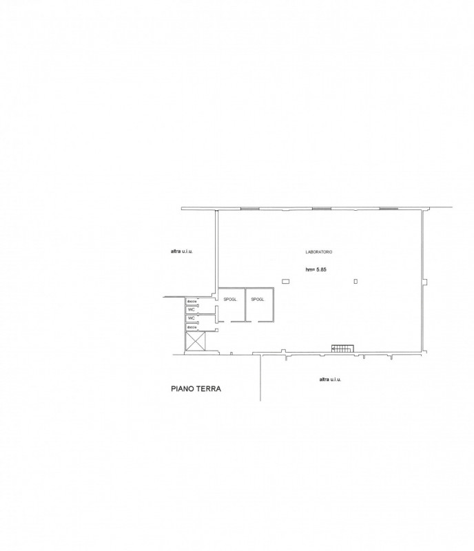
Scopri un'opportunità unica per il tuo business a Bussolengo! Situato in una posizione centrale, nelle immediate vicinanze dell'Eurospin, questo laboratorio offre uno spazio generoso di circa 554 mq distribuiti su due livelli. Al piano terra, ti accoglie un locale luminoso e funzionale di circa 370 mq con accesso diretto dalla strada principale.

Il laboratorio è dotato di due spogliatoi e doppio wc completi di doccia, rendendolo ideale per chi necessita di comfort durante le ore lavorative. Grazie alla presenza sia delle scale interne che dell'ascensore, l'accessibilità al piano interrato è semplice e comoda. Qui troverai ulteriori 370 mq adibiti a magazzino, perfetti per lo stoccaggio o come deposito aggiuntivo. Questa soluzione rappresenta la scelta perfetta per aziende che cercano ampi spazi operativi in una zona strategica e ben collegata. La centralità della location garantisce visibilità e facilità d’accesso ai tuoi clienti. Non perdere questa occasione! Contatta subito la nostra agenzia per maggiori informazioni o per organizzare una visita sul posto. --- annuncio pubblicato con GESTIONALEIMMOBILIARE.it.

Dettagli

  • ID Annuncio: 49578824
  • Prezzo: € 1.500
  • Superficie: 554 m²
  • Pubblicazione: 17/10/2025
  • Tipologia:
  • Contratto:

Informazioni addizionali

  • Arredamento: Non Specificato
  • Riscaldamento: Non Specificato
  • Cucina: Non Specificata
  • Condizioni: Non Specificate

Efficienza Energetica

  • Classe Energetica: Non Comunicata
  • I.P.E.: 0.00 kWh/m3anno

Indirizzo Caricamento...