logo mondocasa

Semi-indipendente

€ 390.000

  • in Vendita
  • Locali: 3
  • Bagni: 3
  • Mq.: 150

Descrizione

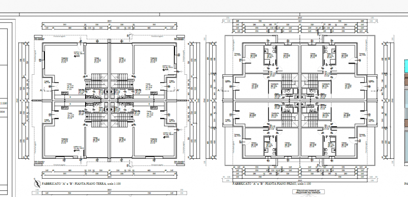
Scopri la tua nuova casa nella tranquilla zona di Giarre, ad Abano Terme. Questa elegante soluzione quadrifamiliare è progettata per offrire comfort e stile, con una disposizione degli spazi ottimale. Al piano terra, ti accoglie un'ampia zona giorno che si affaccia su un giardino privato perfetto per momenti all'aperto.

Completa il piano un disimpegno funzionale, un bagno finestrato e un garage capace di ospitare comodamente un'auto. Salendo al primo piano, troverai tre spaziose camere da letto: la camera matrimoniale vanta un bagno en suite privato mentre le altre due camere sono ideali per bambini o ospiti. Un ulteriore bagno finestrato serve questo livello. La proprietà è dotata delle più moderne tecnologie energetiche: impianto di riscaldamento a pompa di calore e pannelli fotovoltaici, vmc, garantiscono efficienza energetica ed eco-sostenibilità, serramenti in legno. Giarre offre non solo tranquillità ma anche servizi essenziali come scuole, e aree verdi nelle vicinanze. La posizione strategica consente facili collegamenti alle strade principali. --- annuncio pubblicato con GESTIONALEIMMOBILIARE.it.

Dettagli

  • ID Annuncio: 49584492
  • Prezzo: € 390.000
  • Superficie: 150 m²
  • Pubblicazione: 20/10/2025
  • Tipologia:
  • Locali: 3
  • Bagni: 3
  • Contratto:

Informazioni addizionali

  • Arredamento: Non Specificato
  • Riscaldamento: Non Specificato
  • Cucina: Non Specificata
  • Condizioni: Nuovo

Efficienza Energetica

  • Classe Energetica: Non Comunicata
  • I.P.E.: 0.00 kWh/m2anno

Indirizzo Caricamento...