logo mondocasa
Emilia Romagna - Provincia di Modena - Carpi

Villetta A Schiera

€ 390.000

  • in Vendita
  • Locali: 3
  • Bagni: 3
  • Mq.: 199

Descrizione

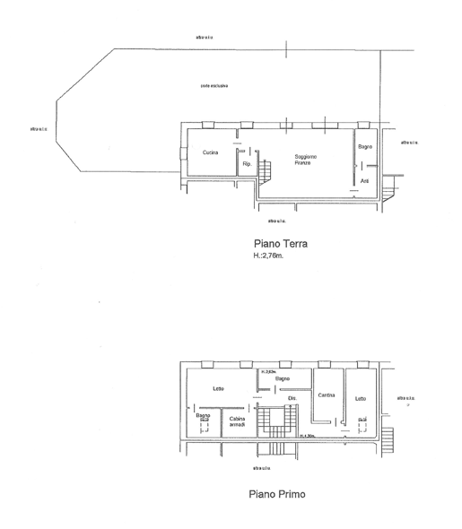
CA234 - PER INFO E VISITE SARA 3456995346. Proponiamo in vendita nella campagna carpigiana all'interno di un borgo moderno, ultime 2 villette a schiera di nuova costruzione e PRONTA CONSEGNA, l'abitazione è così composta: PT ingresso su ampio soggiorno di circa 40 mq, cucina abitabile, bagno con zona lavanderia; P1 tre camere da letto di cui una con bagno e cabina armadi, disimpegno notte e bagno.

Struttura dotata di cappotto, riscaldamento a pavimento con pompe di calore, impianto fotovoltaico di 3 kw, addolcitore, infissi in pvc e classe energetica A4, completa l'immobile un ampio giardino privato su due lati di circa 164 mq. Possibilità di acquistare posti auto a parte. DA VEDERE!! --- annuncio pubblicato con GESTIONALEIMMOBILIARE.it.

Dettagli

  • ID Annuncio: 49589623
  • Prezzo: € 390.000
  • Superficie: 199 m²
  • Pubblicazione: 21/10/2025
  • Tipologia:
  • Locali: 3
  • Bagni: 3
  • Contratto:

Informazioni addizionali

  • Arredamento: Non Specificato
  • Riscaldamento: Non Specificato
  • Cucina: Cucina abitabile
  • Condizioni: Nuovo

Efficienza Energetica

  • Classe Energetica: Non Comunicata
  • I.P.E.: 0.00 kWh/m2anno

Indirizzo Caricamento...